建築条件付き土地 住まいのトータテ ヴェルコート寺塚1丁目【建築条件付土地】
◆気軽に高宮・天神エリアへ。野間大池公園のすぐ近く、利便性に満ちた寺塚一丁目。
◆生活施設が充実し、暮らしやすいエリア◆ ・パセオ野間大池店…徒歩6分・ローソン長丘二丁目店…徒歩7分・ドラッグストアモリ長丘店…徒歩5分・福岡大池郵便局…徒歩6分
◆トータテ×えらべる対象◆厳選されたプランの中から好みに合った外観、内観、設備のカラーをお選びいただけます。飯倉デザインスタジオにて体感できますのでお気軽にご来場ください。
0037-618-22217
無料
魅力1 ◆えらぶ楽しさを、暮らしの価値へ「 トータテ×えらべる 」◆
早期にご契約いただくことで厳選されたプランの中から好みに合う《 外観・内観・設備のカラー 》をお選びいただけます。 「トータテ×えらべる」では、住まいの理想を一緒にカタチにしていく楽しさがあります。 ◆ 4つの選べるスタイル 》》》【 MODA 】……アートな暮らしをかなえる ** 【 NORDIC 】……北欧の自然とともに軽やかに暮らす ** 【 NOKIYA 】……軒のつくりだす穏やかな光の中に暮らす ** 【 VINTAGE 】……愛着のあるものに囲まれて暮らす ** トータテデザインスタジオで実際に体感できます。詳細はHP、もしくはお問合せください。
魅力2 ◆「 快適で便利な暮らし 」をサポートする多彩な設備◆
【 Low-E複層ガラス 】…… 薄い金属膜のコーティングにより太陽熱を効果的に遮断し、冬は暖かさを保ち、夏は室内を涼しく保ちます。断熱性能が高いため、冷暖房費の節約にも効果的です。 【 宅配ボックス 】…… 家族全員不在時はもちろん、お子様の留守番や在宅中の家事育児で手が離せない時、防犯のため対面を避けたい時など、さまざまな状況で安心・安全にご利用いただける設備です。 【 電動シャッター 】…… スイッチ一つで室内のどこからでも開閉が可能で、雨水の蓄積を防ぐ設計に加えて、防犯耐風フック標準装備により、防犯・台風対策にも配慮されています。
魅力3 ◆「ただいま」の数だけ、暮らしが育つ家◆
私たちトータテ都市開発九州は、『 「ただいま」の数だけ、暮らしが育つ家 』をコンセプトに、家族が幸せを感じ、思い出を育む家づくりを目指しています。住宅の外観やインテリアだけでなく、見えない部分にも思いやりを込めた設計を行い、細部に至るまで心を配った住まいを丁寧に作り上げています。充実した標準装備や外構を含む価格設定で安心を提供し、施工からメンテナンス、リフォームまで一貫サポート。20年、30年先も皆様の暮らしを支え続けます。
0037-618-22217
無料
区画図
0037-618-22217
無料
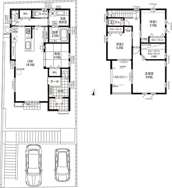
設備・仕様
0037-618-22217
無料
外観・分譲地
外観・分譲地のこだわりポイント
- 南道路
- 整形地
- 高台
0037-618-22217
無料
周辺環境・地図
周辺情報
※半径4kmを超えると、周辺情報のアイコンは表示されません。
- ※不動産会社が入力した情報を基に物件の位置を表示しています。
- ※詳しくは不動産会社までお問合せください。
- ※地図上に表示される各種アイコンなどの情報は、おおよその所在地を表すものであり、物件・施設などの地点を保証するものではありません。
- ※地図の表示領域が広域になると周辺のお店・施設は表示できなくなります。
- ※地図、航空写真情報および地形ならびに周辺のお店・施設は、必ずしも現況を表すものではありません。
- ※物件から周辺のお店・施設までの距離は、利用が想定される道路を通行した場合の距離です。なお、必ずしも最短距離を保証するものではありません。
周辺環境のこだわりポイント
- コンビニ 400m以内
0037-618-22217
無料
物件概要
| 所在地 | 福岡県福岡市 南区寺塚1丁目5-5 | ||
|---|---|---|---|
| 交通 |
西鉄天神大牟田線「高宮」駅 徒歩26分 |
||
| 販売価格 | 3700万円 | 最多価格帯 | - |
| 建物面積 | - | 土地面積 | 161.56m2~163.98m2 |
| 開発面積 | - | 建ぺい率・容積率 | 建ぺい率60%、容積率150% |
| 建築条件 | 建築条件付 建築条件付き土地とは一定期間内に、その土地に建築する建物の請負契約が締結されることを条件に販売される土地のことです。 土地売買契約締結後、建築請負会社と購入した土地に建築する建物について協議することになります。広告に参考プランが掲載されている場合でも、プランは一例であり、実際の建築プランは建築請負会社と土地購入者で協議・検討することが可能です。 期間内に建築プランが決まらず建築請負契約が成立しなければ土地売買契約は白紙となり、支払済みの金銭はすべて返還されます。 建築請負会社が指定されている場合と指定されていない場合があります。 また、建築条件付き土地の価格には、建物価格は含まれません。 |
||
| 販売スケジュール | - | ||
| 販売区画数 / 総区画数 | 3区画 / 3区画 | ||
| 造成完了予定日 | 2024年5月上旬 | 引き渡し可能年月 | 相談 |
| 駐車場 | - | 道路の幅員 | 公道5.4m |
| 用途地域 | 第一種中高層住居専用地域 | 都市計画 | 市街化区域 |
| 地目 | 宅地 | 国土法 | 不要 |
| 土地の権利 | 所有権 | 借地権の種類・期間 | - |
| 主たる設備の概要 | 公営水道、九州電力 | 開発許可番号 | |
| 施工会社 | - | 機構融資 | - |
| 売主 | 株式会社トータテ開発九州 [福岡県知事(5)第15292号] | 取引態様 | 株式会社トータテ都市開発九州(売主) |
| 備考 | 【年末年始休業のご案内】誠に勝手ながら、令和7年12月27日(土)~令和8年1月4日(日)を年末年始休業とさせていただきます。 休業期間中に頂いた資料請求等につきましては、 令和8年1月5日(月)より順次ご対応させていただきます。 何卒ご了承くださいますようお願い申し上げます。 | ||
| 情報更新日 | 2025/12/08 | 次回更新予定日 | 2025/12/22 |
| 取引条件有効期限 | 2025/12/31 | ||
販売概要・権利のこだわりポイント
- 建築条件付き
- 所有権
- 売主・代理
0037-618-22217
無料
取扱い不動産会社
株式会社トータテ都市開発九州の会社情報
お電話でのお問合せは「LIFULL HOME'S(ライフルホームズ)を見て」とお伝えください
(株)トータテ都市開発九州
0037-618-22217
無料
- ※携帯電話はご利用いただけます
- ※光IP電話、及びIP電話をご利用のお客様はTEL:092-812-5516へご連絡ください
- ※携帯電話からお問合せいただいた方には、ショートメッセージ(SMS)またはLINE通知メッセージによるお問合せ内容に関する通知をお届けする場合があり、お客様の電話番号は株式会社LIFULLで一定期間保管されます
- ※株式会社LIFULLの個人情報の取扱い方針に同意のうえ、お電話ください
| 会社名 |
株式会社トータテ都市開発九州 |
|---|---|
| 免許番号 | 福岡県知事 (5) 第 15292 号 |
| 所在地 | 福岡県福岡市早良区飯倉2丁目13-3 |
| 所属団体 |
(公社)福岡県宅地建物取引業協会 |
この物件にお問合せする
実際に物件・周辺環境を見て検討したい!
近隣建物や接道の状況など資料で分からない部分も一目瞭然。 まずはWEBで事前予約、スムーズに見学しましょう
ご予約無しに直接ご来場された場合、担当者不在であったり、
他のお客様のご案内の都合上、お待たせしてしまうことがございます。
不動産会社に電話で相談したい!
(株)トータテ都市開発九州
0037-618-22217
無料
電話でのお問合せは「LIFULL HOME'S(ライフルホームズ)を見て」とお伝えください
- ※携帯電話はご利用いただけます
- ※光IP電話、及びIP電話をご利用のお客様はTEL:092-812-5516へご連絡ください
- ※携帯電話からお問合せいただいた方には、ショートメッセージ(SMS)またはLINE通知メッセージによるお問合せ内容に関する通知をお届けする場合があり、お客様の電話番号は株式会社LIFULLで一定期間保管されます
- ※株式会社LIFULLの個人情報の取扱い方針に同意のうえ、お電話ください
LIFULL HOME'Sは物件鮮度No.1を目指していきます 物件情報に誤りがある場合はコチラからご連絡ください
- 【物件番号】
- 1700122-0000300
- ※完成後1年未満で未入居の物件を「新築」と表示しております。
- ※完成予想図やCG合成画像は、門塀・植栽・庭・外観等、実際とは多少異なる場合があります。









