一戸建て スマートハイムプレイス八角町【セキスイハイムの分譲住宅】
◆分譲住宅内覧会◆(事前に必ずご予約をお願いいたします。) ~セキスイハイム分譲地・分譲住宅をご見学頂けます~
■内容/現地見学会(事前のご予約が必要です) ■日程/随時 ■時間/10時~17時(ご都合の良い日時でご相談ください) ■定休/火曜・水曜(事前のご連絡で対応可能です。)
◇お客様の貴重なお時間の中で、ご希望の情報をご提供・ご案内いたします◇ お客様のご都合に合わせて「知りたい情報だけ」という短時間のご案内も可能です。
0037-618-36172
無料
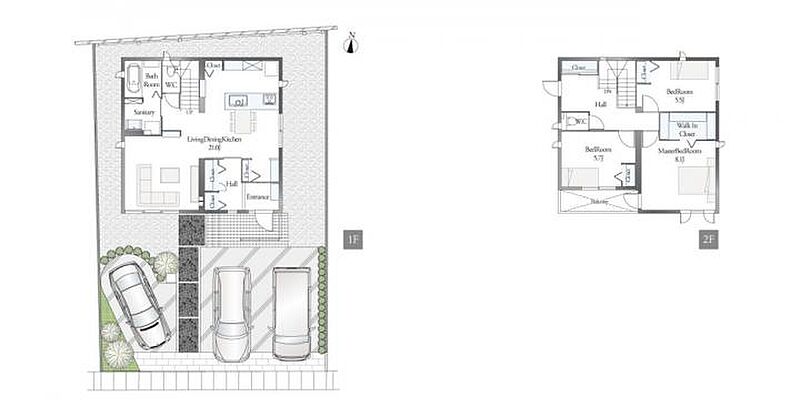
魅力1 【A棟】フルフラットのキッチンが魅力!
キッチンに立っている奥様も、リビングで遊んでいるお子様もお互いに見渡すことが出来ます!
魅力2 ~暮らしやすさが魅力の充実したロケーション~
魅力3 ★太陽光発電・蓄電池・スマートハイムナビで自給自足型を目指す暮らし★
大容量のソーラーでエネルギーを創り出し、蓄電システムに蓄エネ。さらにスマートハイムナビにより電力を効率よく使うセキスイハイムならではのスマートハウスです。
※すべての電力を賄えるわけではありません。電力会社から電気を購入する必要があります。
0037-618-36172
無料
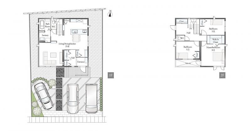
間取り図
0037-618-36172
無料
内観・室内
間取り・内観のこだわりポイント
- LDK15帖以上
- 全室フローリング
0037-618-36172
無料
設備・仕様
設備・仕様のこだわりポイント
- キッチン
-
- IHコンロ
- カウンターキッチン
- 食器洗い乾燥機
- 収納
-
- ウォークインクローゼット
- シューズクローク
- 全居室収納
- その他設備
-
- オール電化
- マイホーム発電システム
- スマートハウス
- シャワー付洗面化粧台
- 温水洗浄便座
- 浴室乾燥機
- トイレ2ヶ所以上
- 複層ガラス採用(二重サッシ・防犯サッシ等)
- スマートキー
- TVモニタ付インターホン
- 宅配ボックス
- EV充電設備
- マイホーム発電システム
- 太陽光発電システム、蓄電池
0037-618-36172
無料
外観・分譲地
外観・分譲地のこだわりポイント
- 駐車場あり
- 南道路
- 整形地
- 前面道路6m以上
- 平坦地
0037-618-36172
無料
周辺環境・地図
周辺情報
※半径4kmを超えると、周辺情報のアイコンは表示されません。
- ※不動産会社が入力した情報を基に物件の位置を表示しています。
- ※詳しくは不動産会社までお問合せください。
- ※地図上に表示される各種アイコンなどの情報は、おおよその所在地を表すものであり、物件・施設などの地点を保証するものではありません。
- ※地図の表示領域が広域になると周辺のお店・施設は表示できなくなります。
- ※地図、航空写真情報および地形ならびに周辺のお店・施設は、必ずしも現況を表すものではありません。
- ※物件から周辺のお店・施設までの距離は、利用が想定される道路を通行した場合の距離です。なお、必ずしも最短距離を保証するものではありません。
周辺環境のこだわりポイント
- スーパー 800m以内
- 複数路線
0037-618-36172
無料
物件概要
| 所在地 | 福島県会津若松市八角町 | ||
|---|---|---|---|
| 交通 |
「」駅 会津バス「蚕養神社前」バス停 徒歩7分 JR磐越西線「会津若松」駅 徒歩20分 |
||
| 販売価格 | 4580万円 | 最多価格帯 | 4580万円(1戸) |
| 建物面積 | 105.97m2 | 土地面積 | 180.23m2 |
| 間取り | 3LDK | 建物構造 | 2階建て 構造:軽量鉄骨 工法: |
| 販売スケジュール | - | ||
| 販売戸数 / 総戸数 | 1戸 / 2戸 | ||
| 完成予定日 | 2023/11 | 引き渡し可能年月 | 即時 |
| 駐車場 | 3台 | 道路の幅員 | 6.00m |
| 用途地域 | 第1種住居地域 | 都市計画 | 市街化区域 |
| 地目 | 地目:宅地 | 国土法 | - |
| 土地の権利 | 所有権 | 借地権の種類・期間 | - |
| 主たる設備の概要 | 無、公営水道、公共下水、側溝、東北電力、会津若松市上下水道、オール電化(敷地・建物へのガス管の引き込みはありません) | 建築確認番号 | 完成済み |
| 施工会社 | - | 機構融資 | - |
| 売主 | セキスイハイム東北株式会社 | 取引態様 | セキスイハイム東北株式会社(売主) |
| 備考 |
記載の販売価格には土地・建物価格、外構(駐車場・門柱・植栽等)、消費税10%を含みます。 自動車・その他の備品は価格に含まれません。 記載の建物面積は未登記のため、建築確認申請書等の面積に依ります。 記載の間取図は概略図のため、実際と異なる場合があります。 間取図に記載の家具は価格に含まれません。 |
||
| 情報更新日 | 2025/12/09 | 次回更新予定日 | 2025/12/16 |
| 取引条件有効期限 | 2025/12/23 | ||
住宅性能・販売概要・権利のこだわりポイント
- 所有権
- 瑕疵担保付き
- 仲介手数料不要
- 売主・代理
- 耐震・制震・免震構造
- 長期優良住宅
- 即入居可
0037-618-36172
無料
取扱い不動産会社
セキスイハイム東北株式会社の会社情報
お電話でのお問合せは「LIFULL HOME'S(ライフルホームズ)を見て」とお伝えください
セキスイハイム東北株式会社 福島支店
0037-618-36172
無料
- ※携帯電話はご利用いただけます
- ※光IP電話、及びIP電話をご利用のお客様はTEL:024-900-2835へご連絡ください
- ※携帯電話からお問合せいただいた方には、ショートメッセージ(SMS)またはLINE通知メッセージによるお問合せ内容に関する通知をお届けする場合があり、お客様の電話番号は株式会社LIFULLで一定期間保管されます
- ※株式会社LIFULLの個人情報の取扱い方針に同意のうえ、お電話ください
| 会社名 |
セキスイハイム東北株式会社 |
|---|---|
| 免許番号 | 国土交通大臣 (9) 第 3749 号 |
| 所在地 | 宮城県仙台市宮城野区榴岡3丁目4番1号アゼリアヒルズ14F |
| 所属団体 |
東北地区不動産公正取引協議会 |
この物件にお問合せする
実際に物件・周辺環境を見て検討したい!
近隣建物や接道の状況など資料で分からない部分も一目瞭然。 まずはWEBで事前予約、スムーズに見学しましょう
ご予約無しに直接ご来場された場合、担当者不在であったり、
他のお客様のご案内の都合上、お待たせしてしまうことがございます。
不動産会社に電話で相談したい!
セキスイハイム東北株式会社 福島支店
0037-618-36172
無料
電話でのお問合せは「LIFULL HOME'S(ライフルホームズ)を見て」とお伝えください
- ※携帯電話はご利用いただけます
- ※光IP電話、及びIP電話をご利用のお客様はTEL:024-900-2835へご連絡ください
- ※携帯電話からお問合せいただいた方には、ショートメッセージ(SMS)またはLINE通知メッセージによるお問合せ内容に関する通知をお届けする場合があり、お客様の電話番号は株式会社LIFULLで一定期間保管されます
- ※株式会社LIFULLの個人情報の取扱い方針に同意のうえ、お電話ください
LIFULL HOME'Sは物件鮮度No.1を目指していきます 物件情報に誤りがある場合はコチラからご連絡ください
- 【物件番号】
- 1706340-0000285
- ※完成後1年未満で未入居の物件を「新築」と表示しております。
- ※完成予想図やCG合成画像は、門塀・植栽・庭・外観等、実際とは多少異なる場合があります。
物件を再検索する
福島県の人気エリアから新築一戸建てを探す















