LIFULL HOME'Sは物件鮮度No.1!※評価について
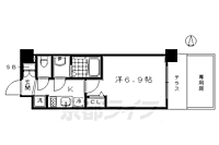
プレサンスTHE KYOTO華苑(6階/605/1LDK/34.8㎡)
プレサンスTHE KYOTO華苑(6階/605/1LDK/34.8㎡)
9.6万円/管理費等10,000円
2時間前 更新
画像一覧
1/30間取り
2/30外観
3/30リビング/ダイニング
4/30室内
5/30室内
6/30室内
7/30室内
8/30室内
9/30室内
10/30室内
11/30室内
12/30室内
13/30室内
14/30室内
15/30キッチン
16/30キッチン
17/30浴室
18/30浴室
19/30トイレ
20/30洗面
21/30収納
22/30設備
23/30玄関
24/30バルコニー
25/30エントランス
26/30駐車場
27/30その他
28/30その他
29/30その他
30/30周辺
間取り
外観
リビング/ダイニング
室内
室内
室内
室内
室内
室内
室内
室内
室内
室内
室内
キッチン
キッチン
浴室
浴室
トイレ
洗面
収納
設備
玄関
バルコニー
エントランス
駐車場
その他
その他
その他
周辺
LINEチャットでも 相談できます
お問合せ先 :株式会社グッドライフ 賃貸・売買のクラスモ四条烏丸店
烏丸十条エリアにプレサンスシリーズが登場。Wi-Fi無料です。
物件のこだわり/設備・条件
新築(非該当)
2階以上の物件(該当)
南向き(非該当)
駐車場(非該当)
オートロック(該当)
エアコン(該当)
バス・トイレ別(該当)
追焚機能(非該当)
フローリング(該当)
ペット相談(非該当)
入居条件
二人入居可、ペット不可、保証人不要キッチン/バス・トイレ
設備・サービス
オートロック、防犯カメラ、TVモニタ付インターホン、エアコン、ウォークインクローゼット、シューズボックス、CS対応、BS対応、光ファイバー、インターネット使用料無料、公営水道、都市ガス、下水、フローリング、バルコニー、室内洗濯機置場、タイル貼り、バリアフリー、エレベーター、ゴミ出し24時間OK、宅配ボックス、バイク置き場あり、駐輪場ありその他
初期費用カード決済可、分譲賃貸備考
烏丸十条エリアにプレサンスシリーズが登場。Wi-Fi無料です。
物件周辺の生活情報
買い物
- コンビニ(190m)
- スーパー(160m)
交通
- 京都市営烏丸線 十条駅 徒歩4分
- 普通(停車)
- 急行(停車)
- 京都市営烏丸線 京都駅 徒歩15分
- 普通(停車)
- 急行(停車)
※急行等の停車駅情報について
急行等の停車駅に関するデータは、随時更新をしておりますが、最新の内容であることを保証するものではありません。
最新かつ正確な情報につきましては、各鉄道会社のウェブサイトにてご確認ください
物件周辺の口コミ
- 京都府京都市南区東九条西河辺町に住む人の口コミ40代女性
交通の便が、良く近くに大きな公園もある。保育園、小学校も近く、子育てしやすい。近くに大型の商業施設もある。
口コミを見る
この物件周辺に住む人の口コミ
口コミは、LIFULL HOME'Sが実際にこの物件の周辺に住む18歳~69歳の男女を対象に、WEBアンケート調査を実施しています。内容には回答者の主観的な表現が含まれる場合があるほか、事実と異なる場合もございます。ご了承ください。
- 京都府京都市南区東九条西河辺町に住む人の口コミ40代女性
- 交通の便が、良く近くに大きな公園もある。保育園、小学校も近く、子育てしやすい。近くに大型の商業施設もある。
- 京都府京都市下京区屋形町に住む人の口コミ40代女性
- 子育ての中で、友達も出来たし困った時に、助け合える。病院、スーパーなど充実している。大きな不満は特になく過ごせているから。自然も全くない訳でもない。交通の便もよい。お年寄りが子供達を見守ってくれる。
- 京都府京都市下京区東中筋通下魚棚下るに住む人の口コミ50代男性
- 伝統と革新が共存している、活気がありながら落ち着いた都市である。
- 京都府京都市南区東九条明田町に住む人の口コミ20代女性
- 夜はあまり治安が良いとは言えないがある程度のものは近くにあって便利なのは便利
- 京都府京都市南区西九条池ノ内町に住む人の口コミ40代男性
- 京都駅構内徒歩10分圏内、大病院近し、交通の便よろし、世界遺産の神社仏閣あり、ショッピングモールあり、スーパーあり、居酒屋あり、車なくても自転車・徒歩で買い物出来る立地条件は他にないでしょ!!
- 京都府京都市下京区和気町に住む人の口コミ40代女性
- 交通の便が良く、近くに公園や水族館などがあり、コンビニや駐車場も多いので便利なところ
- 京都府京都市南区八条内田町に住む人の口コミ30代女性
- 京都駅にちかく、お店などもたくさんあるわりには 自然も公園もあり、すみよい。
- 京都府京都市南区西九条東比永城町に住む人の口コミ40代女性
- 交通が便利で、銀行や郵便局なども近くて日常生活が楽なので満足しています。
- 京都府京都市下京区和気町に住む人の口コミ50代男性
- ファミリーマートコンビニが近くに沢山有ります。病院が近くて助かります
- 京都府京都市南区西九条島町に住む人の口コミ20代女性
- 京都駅近くですごく便利。地下鉄バス私鉄JRがあり待たなくても移動できる。車を持っているが、待たなくても生活できる。都会。
物件概要
- 建物構造
- RC(鉄筋コンクリート)
- 駐車場
- 空無
- 総戸数
- 49戸
- 契約形態
- -
- 契約期間
- 2年間
- 更新料
- 15,000円
- その他費用
- 鍵交換費用:33,000円、室内清掃費用:60,000円、水道料:4,500円、安心サポート:16,500円、エアコンクリーニング代:16,500円
- 保証会社
加入要
保証会社:全保連株式会社
保証会社利用料:初回契約時:50%、更新時:15、000円、引落手数料:330円/月(税込)
- 住宅保険
- 要
- 管理
- 管理員:巡回
- LIFULL HOME'S
物件番号 - 0107331-0168138
- 自社管理番号
- 95813
- 取引態様
- 一般媒介
- 会社名
- 株式会社グッドライフ 賃貸・売買のクラスモ四条烏丸店
- 電話でお問合せ(通話無料)
お問合せ先 :株式会社グッドライフ 賃貸・売買のクラスモ四条烏丸店
不動産会社情報
株式会社グッドライフ 賃貸・売買のクラスモ四条烏丸店

京都府京都市下京区月鉾町47−4
京都市営烏丸線 四条駅 徒歩3分
- 営業時間
- 10:00~19:00
- 定休日
- 年末年始12/29~1/3迄
優良店認定
電話でお問合せお客様の電話番号は不動産会社には通知されません
- 不動産会社に
つながります
お客様の電話番号は不動産会社に通知されません
- ※光IP電話、及びIP電話からはご利用になれません
- ※お電話によるお問合せは、店舗営業時間内にお願いします。つながらない場合は、お問合せフォームよりお問合せください
- ※不動産会社がお電話に出られなかった場合、お問合せいただいた後に不動産会社より折り返しのお電話がある場合がございます(お客様が非通知設定した場合は対象外です)
- ※株式会社LIFULLは電話会社が提供するサービスを介してお客様の発信者番号を受領後、折り返し専用の電話番号を発番してお問合せの不動産会社に通知します(お客様の発信者番号がお問合せの不動産会社に通知されることはございません)
- ※携帯電話からお問合せいただいた方に対し、株式会社LIFULLは電話会社が提供するメッセ―ジサービスを介してお客様の発信者番号を受領後、ショートメッセージ(SMS)またはLINE通知メッセージによるお問合せ内容に関する通知をお届けする場合があります
- ※お客様が通話中に不動産会社にお伝えになったお客様の個人情報及び、電話会社が発番する折り返し専用の電話番号は、お問合せ先不動産会社が資料送付・電子メール送信・電話連絡などの目的で保管する可能性があります。お問合せ先不動産会社が保管する個人情報の取扱いについては、各不動産会社に直接お問合せください
- ※株式会社LIFULLでは本サービスを円滑に運用するために、お客様の発信者番号をサービスご利用の控えとして一定期間保管いたします
- ※上記および株式会社LIFULLの個人情報の取扱い方針に同意のうえ、お電話ください
【LIFULL HOME'S物件番号】0107331-0168138【自社管理番号】95813
オンライン対応
オンライン内見・オンライン相談・IT重説に対応している物件です

「オンライン内見」「オンライン相談」「IT重説」とは?
物件の内見や不動産会社スタッフとの相談、契約前の重要事項説明をオンライン(ビデオ通話)で行うことができるサービスです。
オンライン内見
ビデオ通話で現地(物件)にいる不動産会社スタッフと映像・音声を使ってリアルタイムで会話しながら内見ができます。
オンライン相談
「物件について聞きたいことがある」など不動産会社スタッフへの相談もビデオ通話で行うことができます。
IT重説
契約前の重要事項説明(重説)をビデオ通話で行うことができます。
利用時の注意事項
- ビデオ通話については各不動産会社指定のものとなります。
- ビデオ通話利用時には通信が発生します。従量課金制通信サービスや通信量に上限があるネット回線・プランを利用する場合は、通信量にご注意ください。
- 通信速度やアプリの設定によってはビデオ通話の画質が低下することがあります。安定した画質で利用するためにも、Wi-Fi環境下での利用を推奨します。
- ご利用のビデオ通話アプリによっては、対象のOSやブラウザに制限がある場合があります。詳しくはお問合せ先不動産会社にご確認ください。
初期費用・月額費用をあわせて確認!この物件に住んだときの費用めやす
めやすを見るこの物件に住んだときの費用めやす
- 初期費用
- 月額費用
- 追加費用※ご確認ください
追加で費用が
かかる場合があります
必ずご確認ください
初期費用めやす約0円
追加で費用がかかります(※)敷金
0
- 礼金
96,000
賃料+共益費・管理費の1ヶ月分として換算
賃料の1ヶ月分+税として換算。不動産会社によって金額が異なるため正確な金額は不動産会社にお問合せください
※追加費用もチェック!
これらの項目以外にも費用がかかる場合があります。正確な金額は不動産会社にお問合せください。
- 初期費用
- 鍵交換費:33,000円
- 室内清掃費:60,000円
- 火災保険費:不動産会社に要確認
- その他
- 水道料:4500円
- 安心サポート:16500円
- エアコンクリーニング代:16500円
- 保証会社
- 初回契約時:50%、更新時:15、000円、引落手数料:330円/月(税込)
不動産会社より
烏丸十条エリアにプレサンスシリーズが登場。Wi-Fi無料です。
烏丸十条エリアにプレサンスシリーズが登場。Wi-Fi無料です。
- 保存する
- 共有する
- ※各種情報と現状に差異がある場合は、現状優先となります
- ※不動産会社が入力した情報を基に物件の位置を表示しています。詳しくは不動産会社までお問合せください
- ※不動産会社の方からの上記電話番号によるお問合せはお断りしております。こちら不動産会社詳細からお問合せください
- ※LIFULL HOME'Sは物件鮮度No.1を目指していきます。閲覧中の物件が「成約済である」「実際の物件情報と異なる点がある」などの場合、「掲載110番」からお問合せください
- ※QRコードは株式会社デンソーウェーブの登録商標です
最近見た賃貸物件
LIFULL HOME'S 地図・周辺情報
買い物
- ファミリーマート 烏丸十条店
- ジャパン 京都十条店
- ダックスイオンモールKYOTO店
- ローソン 烏丸札ノ辻店
- 生鮮スーパーケント東寺店
グルメ
- ステーキガスト 京都十条通店
- ガスト 京都十条通店(から好し取扱店)
- 吉野家 京都九条店
- 和食さと 大石橋店
- モスバーガー 近鉄東寺駅前店
育児・教育
- 東和保育園
- 京都市立九条弘道小学校
- 京都市立凌風小中学校
- 隨林寺保育園
- 京都市立九条塔南小学校
医療
- 洛和会ヘルスケアシステム洛和会東寺南病院
- 医療法人社団親和会京都脊椎脊髄外科・眼科病院
- 医療法人五木田病院介護医療院
- 医療法人社団育成会京都久野病院介護医療院
- 光仁病院
公共施設・郵便局
- 京都札ノ辻郵便局
- 京都市南図書館
- 京都府南警察署
- 京都十条郵便局
- 京都市吉祥院図書館
公園
- 梅小路公園
- 深草墓園
- 梅小路公園
- 唐橋西寺公園
- 深草西浦南公園
利用可能な駅
- 徒歩10分以内
京都市営烏丸線
- 十条駅徒歩4分
- 九条駅徒歩8分
- すべての駅
近鉄京都線
- 十条駅徒歩11分
- 東寺駅徒歩15分
- 上鳥羽口駅徒歩19分
- 竹田駅徒歩35分
京都市営烏丸線
- 京都駅徒歩15分
- くいな橋駅徒歩23分
- 五条駅徒歩32分
京阪本線
- 鳥羽街道駅徒歩18分
- 伏見稲荷駅徒歩22分
- 龍谷大前深草駅徒歩28分
- 七条駅徒歩32分
- 藤森駅3.1km
- 清水五条駅3.3km
JR奈良線
- 東福寺駅徒歩22分
- 稲荷駅徒歩25分
JR山陰本線
- 梅小路京都西駅徒歩35分
- 丹波口駅3.6km
JR東海道・山陽本線
- 西大路駅3.1km
- 周辺情報は2023年07月21日時点のものになります。
- 周辺情報は、参考情報としてのみご利用ください(周辺情報は、株式会社LIFULLが地図情報の提供事業者から提供を受けた情報とLIFULL HOME'Sの物件情報に基づき、独自の方法で抽出し提供しているものです。周辺情報は、移転や閉鎖等により情報が最新ではない、または正しくない場合がありますが、地図情報の提供事業者から提供された情報をそのまま周辺情報として表示しているため、正確かつ最新の情報へ修正することができないことがあります。)
- 周辺情報は、株式会社LIFULLが掲載するものであり、不動産物件情報を掲載している不動産会社が掲載するものではありません
- 交通情報の一部については、株式会社LIFULLが掲載するものであり、不動産物件情報を掲載している不動産会社が掲載するものではない場合があります。交通情報に関する質問などは株式会社LIFULLにお問合せください














































