LIFULL HOME'Sは物件鮮度No.1!※評価について
ロイヤルシティ四番館(1階/3LDK/62.67㎡)
ロイヤルシティ四番館(1階/3LDK/62.67㎡)
11.3万円/管理費等8,000円
3時間前 更新
画像一覧
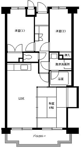
1/29間取り
間取図
2/29外観
外観・土地
3/29外観
外観・土地
4/29リビング/ダイニング
リビング
5/29リビング/ダイニング
リビング
6/29室内
内装
7/29寝室
寝室
8/29キッチン
キッチン
9/29キッチン
キッチン
10/29浴室
バス
11/29トイレ
トイレ
12/29洗面
洗面所
13/29収納
収納
14/29設備
設備
15/29設備
共用設備
16/29設備
共用設備
17/29玄関
玄関
18/29バルコニー
バルコニー
19/29エントランス
エントランス
20/29駐車場
駐車場
21/29その他
部屋画像_その他
22/29その他
その他
23/29周辺
サミットストア大泉学園店 815m
24/29周辺
サンドラッグ 大泉学園町店 654m
25/29周辺
コメリハード&グリーン大泉学園店 531m
26/29周辺
華屋与兵衛 練馬大泉学園店 335m
27/29周辺
練馬区立大泉学園桜中学校 1034m
28/29周辺
練馬区立大泉学園桜小学校 550m
29/29周辺
練馬区立大泉学園保育園 219m
間取り
外観
外観
リビング/ダイニング
リビング/ダイニング
室内
寝室
キッチン
キッチン
浴室
トイレ
洗面
収納
設備
設備
設備
玄関
バルコニー
エントランス
駐車場
その他
その他
周辺
周辺
周辺
周辺
周辺
周辺
周辺
お問合せ先 :アエラス三鷹店 (株式会社アエラス.PR)
住まい探し特典内容
電気・ガス・水道・ネットの移転手続きを「代行」いたします!(無料)
- 利用条件
- アエラス三鷹店 (株式会社アエラス.PR)で利用可
- 他特典との併用可
利用方法
来店時に本特典の画面をスマートフォンやタブレットでスタッフに提示、または画面印刷した用紙を提示ください。
有効期限 なし
オンラインで申込から契約手続き、LINEでのご相談も可能です
基本情報
不動産用語- 賃料
- 11.3万円
- 管理費等
- 8,000円
初期費用などお気軽にお問合せください
- 敷金/礼金
- 1ヶ月/1ヶ月
- 保証金/敷引・償却金
- -/-
- 交通
東京メトロ有楽町線 和光市駅 3.2km
西武池袋線 大泉学園駅 バス12分 長久保下車 徒歩3分
東武東上線 朝霞駅 バス18分 都民農園下車 徒歩9分
東京地下鉄有楽町線 地下鉄成増 バス20分 長久保下車 徒歩1分
- 所在地
東京都練馬区大泉学園町8丁目10-18
地図を見る- 築年月
- 1995年1月(築31年)
- 主要採光面
- 南
- 専有面積
- 62.67㎡
- バルコニー面積
- -
- 所在階/階数
- 1階/4階建
入居可能日などお気軽にお問合せください
- 現況
- 空家
- 入居可能時期
- 相談
(相談)

人気物件はすぐに埋まってしまいます。
気になったらお早めにお問合せください。
- 情報公開日
2025/09/18
75日前 公開
- 情報更新日
2025/12/02
3時間前 更新
- 次回更新
予定日 - 2025/12/04
物件のこだわり/設備・条件
新築(非該当)
2階以上の物件(非該当)
南向き(該当)
駐車場あり(該当)
オートロック(非該当)
エアコン(非該当)
バス・トイレ別(該当)
追焚機能(非該当)
フローリング(非該当)
ペット相談(非該当)
位置
角部屋入居条件
事務所可(SOHO向け)、二人入居可、ルームシェア可、保証人要キッチン/バス・トイレ
設備・サービス
CATV、光ファイバー、公営水道、都市ガス、下水、バルコニー、室内洗濯機置場、南面バルコニー、タイル貼り、エレベーター、ゴミ出し24時間OK、駐車場あり、駐輪場ありその他
初期費用カード決済可、住まい探し特典あり備考
駐車場13000円台(税別)/鍵交換代借主負担/室内清掃費用借主負担
物件周辺の生活情報
学校
- 練馬区立大泉学園桜小学校(550m)
- 練馬区立大泉学園桜中学校(1,034m)
買い物
- コンビニ(340m)
- スーパー(815m)
- ドラッグストア(654m)
その他施設
- コメリハード&グリーン大泉学園店(531m)
交通
- 西武池袋線 大泉学園駅 バス12分 長久保下車 徒歩3分
- 普通(停車)
- 準急(停車)
- 通勤準急(停車)
- 快速(通過)
- 通勤急行(停車)
- 急行(通過)
- 快速急行(通過)
- 東武東上線 朝霞駅 バス18分 都民農園下車 徒歩9分
- 普通(停車)
- 準急(停車)
- 急行(停車)
- 快速急行(通過)
- 川越特急(通過)
※急行等の停車駅情報について
急行等の停車駅に関するデータは、随時更新をしておりますが、最新の内容であることを保証するものではありません。
最新かつ正確な情報につきましては、各鉄道会社のウェブサイトにてご確認ください
物件周辺の口コミ
- 東京都練馬区大泉学園町に住む人の口コミ30代女性
子連れでベビーカーでお店に入ったりしても、店員さんは勿論、通りすがりの方が優しく声をかけてくれる。地域密着型のお店がある。
口コミを見る
この物件周辺に住む人の口コミ
口コミは、LIFULL HOME'Sが実際にこの物件の周辺に住む18歳~69歳の男女を対象に、WEBアンケート調査を実施しています。内容には回答者の主観的な表現が含まれる場合があるほか、事実と異なる場合もございます。ご了承ください。
- 東京都練馬区大泉学園町に住む人の口コミ30代女性
- 子連れでベビーカーでお店に入ったりしても、店員さんは勿論、通りすがりの方が優しく声をかけてくれる。地域密着型のお店がある。
- 東京都練馬区大泉学園町に住む人の口コミ50代男性
- 車を使って移動、旅行をするためインターチェンジが近く来るまでの利便性がよい
- 東京都練馬区大泉学園町に住む人の口コミ40代女性
- 文教地区であること。23区内なのに自然豊かなこと。静かな暮らしが出来ること。町並みが整然としていて美しく、住んでいることに誇りを持てること。
- 東京都練馬区大泉学園町に住む人の口コミ50代男性
- 都会すぎず田舎過ぎなくてよい。電車、バスの交通機関がとても良い
- 東京都練馬区大泉学園町に住む人の口コミ40代男性
- コンビニやスーパー、ドラッグストア等が徒歩5分圏内に複数あって便利です。ただ、駅までは徒歩30分以上かかります。
- 東京都練馬区大泉学園町に住む人の口コミ60代男性
- 牛の牧場があるなんて、東京23区唯一。畑が多く、野菜の百円自販機も多い。
- 東京都練馬区大泉学園町に住む人の口コミ30代女性
- 治安が良く、小さな子連れのファミリーが多いので子育てに向いていると思います。
- 東京都練馬区大泉学園町に住む人の口コミ40代男性
- 雰囲気、感じが良い。住みやすいし、環境も良い。何か、1番の理由は、落ち着いているところかな!
- 東京都練馬区大泉学園町に住む人の口コミ50代男性
- 街並みが綺麗、都心への交通アクセスが良い、学校、病院、スーパー他生活に欠かせない施設が多く揃っている。
- 東京都練馬区大泉学園町に住む人の口コミ40代女性
- お祭り、公園、児童館、無料で遊べる所もたくさん。学校もたくさんあるので、ママ友や子供の友達もいっぱいいます。自然も畑もあります。東京に住んでるけど東京なのか?っと思うほど自然がいっぱい!
物件概要
- 建物構造
- RC(鉄筋コンクリート)
- 駐車場
- 空有 (1台) 14,300円(税込) 駐1台
- 総戸数
- 43戸
- 契約形態
- -
- 契約期間
- 2年間
- 更新料
- -
- その他費用
- -
- 保証会社
加入要
保証会社利用料:月額賃料等の50%~100%(初回保証料)、2年目以降は1万円/年
- 住宅保険
- 要
- 管理
- -
- LIFULL HOME'S
物件番号 - 0122139-0106546
- 自社管理番号
- 67567827-1
- 取引態様
- 仲介
- 会社名
- アエラス三鷹店 (株式会社アエラス.PR)
営業スタッフコメント

アエラス三鷹店 (株式会社アエラス.PR)
望月裕貴
これまでの経験を生かし、担当させて頂く全てのお客様に精一杯ご対応させて頂きます!
業界経験13年
資格少額短期保険募集人
- 会社実績や特徴・サービス情報
- 『賃貸専門店』だからこそできるサービスに自信があります。 お客様の『希望物件』が見つかるまで、とことんお付き合いさせて頂きます。 お部屋探しのことなら『アエラス三鷹店』に全てお任せ下さい。 ~当店の5つの強み~ 1)クレジットカードの『初期費用分割払い(全額又は一部)』を喜んでお受け致します。 (クレカ以外の方法もございます) 2)他社様がネットに掲載されている物件は、全てお調べし『好条件』でご紹介致します。 (他社様でお申込みされた物件でも、『好条件』でご紹介できる場合がございます) 3)『審査が不安』『保証人がいない』『値段交渉をして欲しい』など、どのようなご条件でも遠慮なくご相談頂けます。 4)ご検討されているエリアや沿線が、『広範囲』『複数』でも一度で漏れなくお探し頂けます。 5)店舗に『ご来店できない』お客様でも、『オンライン』でお部屋探しを完結できます。
『賃貸専門店』だからこそできるサービスに自信があります。 お客様の『希望物件』が見つかるまで、とことんお付き合いさせて頂きます。 お部屋探しのことなら『アエラス三鷹店』に全てお任せ下さい。 ~当店の5つの強み~ 1)クレジットカードの『初期費用分割払い(全額又は一部)』を喜んでお受け致します。 (クレカ以外の方法もございます) 2)他社様がネットに掲載されている物件は、全てお調べし『好条件』でご紹介致します。 (他社様でお申込みされた物件でも、『好条件』でご紹介できる場合がございます) 3)『審査が不安』『保証人がいない』『値段交渉をして欲しい』など、どのようなご条件でも遠慮なくご相談頂けます。 4)ご検討されているエリアや沿線が、『広範囲』『複数』でも一度で漏れなくお探し頂けます。 5)店舗に『ご来店できない』お客様でも、『オンライン』でお部屋探しを完結できます。
- 電話でお問合せ(通話無料)
お問合せ先 :アエラス三鷹店 (株式会社アエラス.PR)
不動産会社情報
アエラス三鷹店 (株式会社アエラス.PR)
東京都武蔵野市中町1丁目13-2 村越ビル 4階
JR中央線 三鷹駅 徒歩1分
- 営業時間
- 10:00~19:00(※時間外対応出来る場合もございます)
- 定休日
- 年中無休(年末年始などを除く) ※12/9(火)は社内研修の為16時閉店
初期費用「全額」分割払い可能(クレジットカード等)です。どのような難しいご条件でも遠慮なく「ご相談」頂けます(保証人・費用面・審査面など)。他社様が掲載されている物件も「好条件」でご紹介いたします。
- 店舗の特徴
- 引越し業者紹介可
- 年中無休
- オンライン相談可
- 保証人不要な物件あり
- 入居ローンあり
- 法人契約取扱い
- 女性スタッフ対応可
- 19時以降も営業
- 駅から歩いて3分以内
- 外国語を話せるスタッフ在籍
電話でお問合せお客様の電話番号は不動産会社には通知されません
- 不動産会社に
つながります
お客様の電話番号は不動産会社に通知されません
- ※光IP電話、及びIP電話からはご利用になれません
- ※お電話によるお問合せは、店舗営業時間内にお願いします。つながらない場合は、お問合せフォームよりお問合せください
- ※不動産会社がお電話に出られなかった場合、お問合せいただいた後に不動産会社より折り返しのお電話がある場合がございます(お客様が非通知設定した場合は対象外です)
- ※株式会社LIFULLは電話会社が提供するサービスを介してお客様の発信者番号を受領後、折り返し専用の電話番号を発番してお問合せの不動産会社に通知します(お客様の発信者番号がお問合せの不動産会社に通知されることはございません)
- ※携帯電話からお問合せいただいた方に対し、株式会社LIFULLは電話会社が提供するメッセ―ジサービスを介してお客様の発信者番号を受領後、ショートメッセージ(SMS)またはLINE通知メッセージによるお問合せ内容に関する通知をお届けする場合があります
- ※お客様が通話中に不動産会社にお伝えになったお客様の個人情報及び、電話会社が発番する折り返し専用の電話番号は、お問合せ先不動産会社が資料送付・電子メール送信・電話連絡などの目的で保管する可能性があります。お問合せ先不動産会社が保管する個人情報の取扱いについては、各不動産会社に直接お問合せください
- ※株式会社LIFULLでは本サービスを円滑に運用するために、お客様の発信者番号をサービスご利用の控えとして一定期間保管いたします
- ※上記および株式会社LIFULLの個人情報の取扱い方針に同意のうえ、お電話ください
【LIFULL HOME'S物件番号】0122139-0106546【自社管理番号】67567827-1
初期費用・月額費用をあわせて確認!この物件に住んだときの費用めやす
めやすを見るこの物件に住んだときの費用めやす
- 初期費用
- 月額費用
- 追加費用※ご確認ください
追加で費用が
かかる場合があります
必ずご確認ください
初期費用めやす約0円
追加で費用がかかります(※)敷金
113,000
- 礼金
113,000
- 保証金
0
賃料+共益費・管理費の1ヶ月分として換算
賃料の1ヶ月分+税として換算。不動産会社によって金額が異なるため正確な金額は不動産会社にお問合せください
※追加費用もチェック!
これらの項目以外にも費用がかかる場合があります。正確な金額は不動産会社にお問合せください。
- 初期費用
- 鍵交換費:不動産会社に要確認
- 室内清掃費:不動産会社に要確認
- 火災保険費:不動産会社に要確認
- 月額費用
- 駐車場費:14,300円(税込)※契約任意
- 保証会社
- 月額賃料等の50%~100%(初回保証料)、2年目以降は1万円/年
不動産会社より
オンラインで申込から契約手続き、LINEでのご相談も可能です
駐車場13000円台(税別)/鍵交換代借主負担/室内清掃費用借主負担
- 保存する
- 共有する
- ※各種情報と現状に差異がある場合は、現状優先となります
- ※不動産会社が入力した情報を基に物件の位置を表示しています。詳しくは不動産会社までお問合せください
- ※不動産会社の方からの上記電話番号によるお問合せはお断りしております。こちら不動産会社詳細からお問合せください
- ※LIFULL HOME'Sは物件鮮度No.1を目指していきます。閲覧中の物件が「成約済である」「実際の物件情報と異なる点がある」などの場合、「掲載110番」からお問合せください
- ※QRコードは株式会社デンソーウェーブの登録商標です
この物件を取扱う他の会社
LIFULL HOME'Sでは、主要項目が同一の物件をまとめて表示しています。所在地や営業時間、掲載画像等から不動産会社を選んでお問合せください。
LIFULL HOME'S 地図・周辺情報
買い物
- ローソンストア100 大泉学園町八丁目店
- コメリハード&グリーン 大泉学園店
- サンドラッグ大泉学園町店
- ファミリーマート 大泉長久保通り店
- サミットストア 大泉学園店
グルメ
- 華屋与兵衛 練馬大泉学園店
- 松屋 大泉学園町店
- ジョナサン 大泉学園店
- ケンタッキーフライドチキン いなげや大泉学園店
- デニーズ 大泉店
育児・教育
- 練馬区立大泉学園保育園
- 練馬区立大泉学園桜小学校
- 練馬区立大泉学園桜中学校
- グローバルキッズ大泉園
- 新座市立栄小学校
医療
- 医療法人社団健育会ねりま健育会病院
- 医療法人財団厚生協会大泉病院
- 医療法人社団一陽会陽和病院
- 医療法人寿鶴会菅野病院
- 医療法人泰一会和光リハビリテーション病院
公共施設・郵便局
- 練馬大泉学園北郵便局
- 新座市福祉の里図書館
- 和光市役所
- 司法研修所内郵便局
- 練馬区立大泉図書館
公園
- 都立大泉中央公園
- 和光樹林公園
- 北大泉公園
- 大泉公園
- 練馬区立清水山の森
利用可能な駅
- 徒歩10分以内
西武池袋線
- 大泉学園駅 バス12分 長久保下車徒歩3分
東武東上線
- 朝霞駅 バス18分 都民農園下車徒歩9分
- すべての駅
東京メトロ有楽町線
- 和光市駅3.2km
- その他交通
- 東京地下鉄有楽町線 地下鉄成増 バス20分 長久保下車 徒歩1分
- 周辺情報は2023年07月21日時点のものになります。
- 周辺情報は、参考情報としてのみご利用ください(周辺情報は、株式会社LIFULLが地図情報の提供事業者から提供を受けた情報とLIFULL HOME'Sの物件情報に基づき、独自の方法で抽出し提供しているものです。周辺情報は、移転や閉鎖等により情報が最新ではない、または正しくない場合がありますが、地図情報の提供事業者から提供された情報をそのまま周辺情報として表示しているため、正確かつ最新の情報へ修正することができないことがあります。)
- 周辺情報は、株式会社LIFULLが掲載するものであり、不動産物件情報を掲載している不動産会社が掲載するものではありません
- 交通情報の一部については、株式会社LIFULLが掲載するものであり、不動産物件情報を掲載している不動産会社が掲載するものではない場合があります。交通情報に関する質問などは株式会社LIFULLにお問合せください














