LIFULL HOME'Sは物件鮮度No.1!※評価について
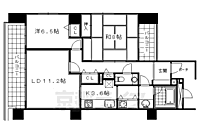
ハイランドコート錦(3階/303/3LDK/118.28m²)
ハイランドコート錦(3階/303/3LDK/118.28m²)
24万円/管理費等42,500円
10時間前 更新
画像一覧
1/30間取り
間取
2/30外観
3/30外観
4/30リビング/ダイニング
5/30リビング/ダイニング
6/30リビング/ダイニング
7/30リビング/ダイニング
8/30キッチン
9/30キッチン
10/30キッチン
11/30キッチン
12/30浴室
13/30トイレ
14/30洗面
15/30洗面
16/30収納
17/30収納
18/30収納
19/30収納
20/30収納
21/30設備
22/30設備
23/30設備
24/30設備
25/30設備
26/30玄関
27/30バルコニー
28/30その他
29/30その他
30/30周辺
サークルK高倉泉正寺町店まで165m 蛸薬師通高倉を西に入るところにございます。
間取り
外観
外観
リビング/ダイニング
リビング/ダイニング
リビング/ダイニング
リビング/ダイニング
キッチン
キッチン
キッチン
キッチン
浴室
トイレ
洗面
洗面
収納
収納
収納
収納
収納
設備
設備
設備
設備
設備
玄関
バルコニー
その他
その他
周辺
仲介手数料割引
ご成約時、仲介手数料は賃料50%(外税)です。
- 利用条件
- 株式会社京都ライフ 二条駅前店で利用可
- 他特典との併用可
- ・法人契約、事業用物件は除きます。 ・積水ハウス、大東建託の管理物件は除きます。
利用方法
来店時に本特典の画面をスマートフォンやタブレットでスタッフに提示、または画面印刷した用紙を提示ください。
有効期限 なし
中心街分譲物件 ・時代・タイムスリップ・ 地下鉄四条駅まで徒歩7分の分譲賃貸マンションです。
物件のこだわり/設備・条件
新築(非該当)
2階以上の物件(該当)
南向き(非該当)
駐車場あり(該当)
オートロック(該当)
エアコン(該当)
バス・トイレ別(該当)
追焚機能(非該当)
フローリング(該当)
ペット相談(非該当)
入居条件
二人入居可、即入居可- 上記以外や相談可の
詳細はお問合せください - 上記以外や相談可の詳細は
お電話ください(通話無料)電話でお問合せ キッチン/バス・トイレ
設備・サービス
オートロック、TVモニタ付インターホン、エアコン、シューズボックス、BS対応、光ファイバー、公営水道、都市ガス、下水、フローリング、室内洗濯機置場、エレベーター、ゴミ出し24時間OK、宅配ボックス、駐車場あり、駐輪場ありその他
分譲賃貸、住まい探し特典あり備考
京阪、阪急、地下鉄のトリプルアクセス。オートロックでセキュリティも安心です。コンビニ、スーパー、ドラッグストアなど近くにあって便利ですよ。 物件情報はもちろん京都のエリア情報まで幅広く対応させていただきます!
物件周辺の生活情報
学校
- 高倉小学校(200m)
- 京都御池中学校(525m)
買い物
- コンビニ(165m)
- スーパー(459m)
- ドラッグストア(277m)
その他施設
- 総合病院(736m)
- 銀行(403m)
- 京都四条柳馬場郵便局(272m)
交通
- 京都市営烏丸線 四条駅 徒歩7分
- 普通(停車)
- 急行(停車)
- 京都市営烏丸線 烏丸御池駅 徒歩10分
- 普通(停車)
- 急行(停車)
※急行等の停車駅情報について
急行等の停車駅に関するデータは、随時更新をしておりますが、最新の内容であることを保証するものではありません。
最新かつ正確な情報につきましては、各鉄道会社のウェブサイトにてご確認ください
物件周辺の口コミ
- 京都府京都市中京区六角通西洞院西入に住む人の口コミ50代男性
生活に必要なものが徒歩圏内で揃えられる。飲食店が充実している。
口コミを見る
この物件周辺に住む人の口コミ
口コミは、LIFULL HOME'Sが実際にこの物件の周辺に住む18歳~69歳の男女を対象に、WEBアンケート調査を実施しています。内容には回答者の主観的な表現が含まれる場合があるほか、事実と異なる場合もございます。ご了承ください。
- 京都府京都市中京区六角通西洞院西入に住む人の口コミ50代男性
- 生活に必要なものが徒歩圏内で揃えられる。飲食店が充実している。
- 京都府京都市下京区松原通油小路東入に住む人の口コミ30代女性
- 治安がよく、遅くまで仕事をしても、複数の交通機関が使用できる。
- 京都府京都市中京区岩上通三条上るに住む人の口コミ60代女性
- 交通も便利、治安も良い! 近くに三条商店街があるので凄く楽しいし便利。避難場所が二条城と言うこの土地柄。 世界が憧れる京都のしかもど真ん中に住まいしているのは誇りに思います。
- 京都府京都市中京区西洞院通二条下るに住む人の口コミ60代男性
- これ以上のいい環境は他にあると思えない。交通環境、買い物、医療、学校。
- 京都府京都市下京区仏光寺通室町西入に住む人の口コミ30代女性
- 仕事をするには便利。物価の高さや、自転車が多いのに自転車のためのインフラが整備されていないこと、観光客のマナーの悪化など不満を上げればキリがないが、総合的には住みやすい場所だと思う。
- 京都府京都市下京区松原通東洞院東入に住む人の口コミ50代女性
- 京都市内のの中心部だがわりに閑静である。最近はゲストハウスが増えて夜も遅くまで外国人が出歩いているが警察署も近く治安も特に問題はなさそうである。買い物、交通の便、病院など不便もない。
- 京都府京都市中京区三条通小川東入に住む人の口コミ50代男性
- 京都の古い街並みがある程度保存されており、落ち着いたエリアが多い。ただ、観光客にはとても迷惑しているので、観光エリアと居住エリアを分割した街づくりが必要である。
- 京都府京都市中京区堀川通錦小路下るに住む人の口コミ40代女性
- 交通の番がよく、買い物もしやすい都会の真ん中。高齢になっても住みやすいと感じる。
- 京都府京都市中京区麩屋町通六角上るに住む人の口コミ50代男性
- 近くに京都で一番の商店街があるので、買い物が便利。複数の駅まで徒歩10分あれば行ける。
- 京都府京都市中京区堀川通錦小路下るに住む人の口コミ40代女性
- とにかく交通、立地が良い。道がフラットに見えて高低差があり、住居は少し高い位置にある為浸水になりにくいから心配が少ない。飲食等お店が多く、百貨店まで歩いていけるのは良い。
物件概要
- 建物構造
- SRC(鉄骨鉄筋コンクリート)
- 駐車場
- 空有 38,500円(税込)
- 総戸数
- 20戸
- 契約形態
- -
- 契約期間
- 2年間
- 更新料
- 280,000円
- その他費用
- -
- 保証会社
- -
- 住宅保険
- 要
- 管理
- 管理員:巡回
- LIFULL HOME'S
物件番号 - 0142941-0175216
- 自社管理番号
- 11693-303-27
- 取引態様
- 仲介
- 会社名
- 株式会社京都ライフ 二条駅前店
営業スタッフコメント

株式会社京都ライフ 二条駅前店
酒井栞
素晴らしいお部屋に出会えるまで全力でサポート致します!
業界経験2年
資格少額短期保険募集人
- 会社実績や特徴・サービス情報
- 京都市内部屋付け数3年連続1位。(株式会社全国賃貸住宅新聞調べ) 当店はJR山陰線、地下鉄東西線の二条駅から3分に立地し、通勤・通学のアクセスの良さ、近隣施設の充実から近年住みたい街と言われる二条駅すぐの所に店舗を構えております。 各エリア専門のスタッフが揃っておりますので、二条駅周辺だけでなく、京都市全域、向日市・長岡京市・宇治市など幅広くご紹介させて頂きます。 社会人のご単身・ファミリー様をはじめ、先端科学大学・同志社大学・立命館大学・京都大学など大学生のお部屋探しも全力でサポートさせて頂きます。 創業40年、地域密着に拘らせて頂いた京都最大級の物件情報をもとに、 誠心誠意、ご満足頂けるお部屋をご紹介させて頂きます。 お部屋を探しは京都ライフ 二条駅前店へ、お気軽にお立ち寄りください
京都市内部屋付け数3年連続1位。(株式会社全国賃貸住宅新聞調べ) 当店はJR山陰線、地下鉄東西線の二条駅から3分に立地し、通勤・通学のアクセスの良さ、近隣施設の充実から近年住みたい街と言われる二条駅すぐの所に店舗を構えております。 各エリア専門のスタッフが揃っておりますので、二条駅周辺だけでなく、京都市全域、向日市・長岡京市・宇治市など幅広くご紹介させて頂きます。 社会人のご単身・ファミリー様をはじめ、先端科学大学・同志社大学・立命館大学・京都大学など大学生のお部屋探しも全力でサポートさせて頂きます。 創業40年、地域密着に拘らせて頂いた京都最大級の物件情報をもとに、 誠心誠意、ご満足頂けるお部屋をご紹介させて頂きます。 お部屋を探しは京都ライフ 二条駅前店へ、お気軽にお立ち寄りください
- 電話でお問合せ(通話無料)
お問合せ先 :株式会社京都ライフ 二条駅前店
不動産会社情報
株式会社京都ライフ 二条駅前店

京都府京都市中京区西ノ京職司町72 ウエストフィールド1階
京都地下鉄東西線 二条駅 徒歩3分
- 営業時間
- 09:30~19:00
- 定休日
- 年中無休(盆正月を除く)
優良店認定
JR、地下鉄とアクセスの良さで人気の二条エリアはもちろん、京都中心地エリア、大宮エリア、西院エリア、円町エリア、北野白梅町エリアなど幅広いエリアでのお部屋探しをサポートいたします。
- 店舗の特徴
- 賃貸管理業務
- 24時間管理物件取扱い
- リフォーム対応
- 引越し業者紹介可
- バリアフリー
- 系列店舗での対応可
- 保証人不要な物件あり
- 法人契約取扱い
- 駅から歩いて3分以内
電話でお問合せお客様の電話番号は不動産会社には通知されません
- 不動産会社に
つながります
お客様の電話番号は不動産会社に通知されません
- ※光IP電話、及びIP電話からはご利用になれません
- ※お電話によるお問合せは、店舗営業時間内にお願いします。つながらない場合は、お問合せフォームよりお問合せください
- ※不動産会社がお電話に出られなかった場合、お問合せいただいた後に不動産会社より折り返しのお電話がある場合がございます(お客様が非通知設定した場合は対象外です)
- ※株式会社LIFULLは電話会社が提供するサービスを介してお客様の発信者番号を受領後、折り返し専用の電話番号を発番してお問合せの不動産会社に通知します(お客様の発信者番号がお問合せの不動産会社に通知されることはございません)
- ※携帯電話からお問合せいただいた方に対し、株式会社LIFULLは電話会社が提供するメッセ―ジサービスを介してお客様の発信者番号を受領後、ショートメッセージ(SMS)またはLINE通知メッセージによるお問合せ内容に関する通知をお届けする場合があります
- ※お客様が通話中に不動産会社にお伝えになったお客様の個人情報及び、電話会社が発番する折り返し専用の電話番号は、お問合せ先不動産会社が資料送付・電子メール送信・電話連絡などの目的で保管する可能性があります。お問合せ先不動産会社が保管する個人情報の取扱いについては、各不動産会社に直接お問合せください
- ※株式会社LIFULLでは本サービスを円滑に運用するために、お客様の発信者番号をサービスご利用の控えとして一定期間保管いたします
- ※上記および株式会社LIFULLの個人情報の取扱い方針に同意のうえ、お電話ください
【LIFULL HOME'S物件番号】0142941-0175216【自社管理番号】11693-303-27
初期費用・月額費用をあわせて確認!この物件に住んだときの費用めやす
めやすを見るこの物件に住んだときの費用めやす
- 初期費用
- 月額費用
- 追加費用※ご確認ください
追加で費用が
かかる場合があります
必ずご確認ください
初期費用めやす約0円
追加で費用がかかります(※)敷金
240,000
- 礼金
240,000
賃料+共益費・管理費の1ヶ月分として換算
賃料の1ヶ月分+税として換算。不動産会社によって金額が異なるため正確な金額は不動産会社にお問合せください
※追加費用もチェック!
これらの項目以外にも費用がかかる場合があります。正確な金額は不動産会社にお問合せください。
- 初期費用
- 鍵交換費:不動産会社に要確認
- 室内清掃費:不動産会社に要確認
- 火災保険費:不動産会社に要確認
- 月額費用
- 駐車場費:38,500円(税込)※契約任意
- 保証会社
- 不動産会社に要確認
不動産会社より
中心街分譲物件 ・時代・タイムスリップ・ 地下鉄四条駅まで徒歩7分の分譲賃貸マンションです。
京阪、阪急、地下鉄のトリプルアクセス。オートロックでセキュリティも安心です。コンビニ、スーパー、ドラッグストアなど近くにあって便利ですよ。 物件情報はもちろん京都のエリア情報まで幅広く対応させていただきます!
- 保存する
- 共有する
- ※各種情報と現状に差異がある場合は、現状優先となります
- ※不動産会社が入力した情報を基に物件の位置を表示しています。詳しくは不動産会社までお問合せください
- ※不動産会社の方からの上記電話番号によるお問合せはお断りしております。こちら不動産会社詳細からお問合せください
- ※LIFULL HOME'Sは物件鮮度No.1を目指していきます。閲覧中の物件が「成約済である」「実際の物件情報と異なる点がある」などの場合、「掲載110番」からお問合せください
- ※QRコードは株式会社デンソーウェーブの登録商標です
したい暮らしのタグから探す
この物件を取扱う他の会社
LIFULL HOME'Sでは、主要項目が同一の物件をまとめて表示しています。所在地や営業時間、掲載画像等から不動産会社を選んでお問合せください。
ウインズリンク株式会社 アパマンショップ四条烏丸店
京都府京都市下京区月鉾町47−3
京都市営烏丸線 四条駅 徒歩3分
- 営業時間
- 09:30~19:00
- 定休日
- なし(盆休み8/13〜8/16・年末年始12/27〜1/4)
株式会社京都ライフ 四条烏丸店
優良店認定
京都府京都市下京区四条通新町東入月鉾町47-15
京都市営烏丸線 四条駅 徒歩3分
- 営業時間
- 09:30~19:00
- 定休日
- 年中無休(盆正月を除く)
株式会社京都ライフ 山科店
京都府京都市山科区竹鼻竹ノ街道町11
JR東海道・山陽本線 山科駅 徒歩3分
- 営業時間
- 09:30~19:00
- 定休日
- 夏期休暇 8月13日〜8月16日 年末年始休暇 12月27日〜1月4日
LIFULL HOME'S 地図・周辺情報
買い物
- ローソン ドラッグひかり蛸薬師高倉店
- ダイソー京都四条通店
- サンドラッグ錦店
- ローソンストア100 六角柳馬場店
- Can★Do寺町店
グルメ
- 小川珈琲堺町錦店
- ケンタッキーフライドチキン 烏丸錦小路店
- 大戸屋 ごはん処京都錦小路店
- はなまるうどん 京都錦店
- スターバックスコーヒー京都四条通ヤサカビル店
育児・教育
- YMCA三条保育園
- 京都市立高倉小学校
- 京都市立洛風中学校
- 永興開智こども園
- 京都市立洛央小学校
医療
- 医療法人知音会京都新町病院
- 医療法人財団足立病院
- 山元病院
- 医療法人毛利病院
- 京都第二赤十字病院
公共施設・郵便局
- 京都東洞院錦郵便局
- 京都市下京図書館
- 京都府下京警察署
- 京都四条柳馬場郵便局
- 京都市こどもみらい館子育て図書館
公園
- 梅屋広場公園
- 円山公園
- 円山公園
- 岡崎公園
- 京都御苑
利用可能な駅
- 徒歩10分以内
京都市営烏丸線
- 四条駅徒歩7分
- 烏丸御池駅徒歩10分
阪急京都本線
- 烏丸駅徒歩9分
- 京都河原町駅徒歩9分
- すべての駅
京都地下鉄東西線
- 烏丸御池駅徒歩12分
- 京都市役所前駅徒歩14分
- 三条京阪駅徒歩17分
- 東山駅徒歩23分
- 二条城前駅徒歩25分
- 蹴上駅徒歩37分
京阪本線
- 祇園四条駅徒歩13分
- 三条駅徒歩17分
- 清水五条駅徒歩20分
- 神宮丸太町駅徒歩27分
- 七条駅徒歩27分
- 出町柳駅3.4km
京都市営烏丸線
- 五条駅徒歩20分
- 丸太町駅徒歩20分
- 今出川駅3.2km
- 九条駅3.5km
阪急京都本線
- 大宮駅徒歩21分
- 西院駅3.2km
京福電気鉄道嵐山本線
- 四条大宮駅徒歩22分
- 西院駅3.1km
- 西大路三条駅3.2km
JR山陰本線
- 二条駅徒歩31分
- 丹波口駅3.2km
- 梅小路京都西駅4km
JR東海道・山陽本線
- 京都駅徒歩36分
JR奈良線
- 東福寺駅3.4km
- 周辺情報は2023年07月21日時点のものになります。
- 周辺情報は、参考情報としてのみご利用ください(周辺情報は、株式会社LIFULLが地図情報の提供事業者から提供を受けた情報とLIFULL HOME'Sの物件情報に基づき、独自の方法で抽出し提供しているものです。周辺情報は、移転や閉鎖等により情報が最新ではない、または正しくない場合がありますが、地図情報の提供事業者から提供された情報をそのまま周辺情報として表示しているため、正確かつ最新の情報へ修正することができないことがあります。)
- 周辺情報は、株式会社LIFULLが掲載するものであり、不動産物件情報を掲載している不動産会社が掲載するものではありません
- 交通情報の一部については、株式会社LIFULLが掲載するものであり、不動産物件情報を掲載している不動産会社が掲載するものではない場合があります。交通情報に関する質問などは株式会社LIFULLにお問合せください


















