LIFULL HOME'Sは物件鮮度No.1!※評価について
京都市営烏丸線 五条駅 徒歩4分(3LDK/65.61㎡)
京都市営烏丸線 五条駅 徒歩4分(3LDK/65.61㎡)
14万円/管理費等10,500円
15時間前 更新
画像一覧
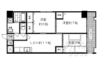
1/30間取り
間取
2/30外観
3/30外観
4/30リビング/ダイニング
5/30リビング/ダイニング
6/30リビング/ダイニング
7/30リビング/ダイニング
8/30リビング/ダイニング
9/30リビング/ダイニング
10/30リビング/ダイニング
11/30リビング/ダイニング
12/30リビング/ダイニング
13/30室内
14/30キッチン
15/30キッチン
16/30キッチン
17/30キッチン
18/30キッチン
19/30浴室
20/30浴室
21/30トイレ
22/30洗面
23/30収納
24/30収納
25/30設備
26/30設備
27/30設備
28/30玄関
29/30バルコニー
30/30周辺
フレスコ五条西洞院店まで68m
間取り
外観
外観
リビング/ダイニング
リビング/ダイニング
リビング/ダイニング
リビング/ダイニング
リビング/ダイニング
リビング/ダイニング
リビング/ダイニング
リビング/ダイニング
リビング/ダイニング
室内
キッチン
キッチン
キッチン
キッチン
キッチン
浴室
浴室
トイレ
洗面
収納
収納
設備
設備
設備
玄関
バルコニー
周辺
仲介手数料割引
仲介手数料は賃料の半月分と消費税となります。(個人契約に限る)
- 利用条件
- ウインズリンク株式会社 アパマンショップ西院店 で利用可
- 他特典との併用可
- ※積水ハウス、大東建託の管理物件は家賃1か月分が仲介手数料としてかかります。
利用方法
来店時に本特典の画面をスマートフォンやタブレットでスタッフに提示、または画面印刷した用紙を提示ください。
有効期限 2026年05月05日まで
地下鉄五条駅徒歩4分 地下鉄沿線徒歩圏の3LDK、南向きベランダの登場です。
基本情報
不動産用語- 賃料
- 14万円
- 管理費等
- 10,500円
初期費用などお気軽にお問合せください
物件のこだわり/設備・条件
新築(非該当)
2階以上の物件(該当)
南向き(該当)
駐車場(非該当)
オートロック(該当)
エアコン(非該当)
バス・トイレ別(該当)
追焚機能(該当)
フローリング(該当)
ペット相談(非該当)
位置
角部屋入居条件
二人入居可、即入居可キッチン/バス・トイレ
設備・サービス
オートロック、TVモニタ付インターホン、シューズボックス、光ファイバー、公営水道、都市ガス、下水、フローリング、バルコニー、室内洗濯機置場、南面バルコニー、エレベーター、駐輪場ありその他
住まい探し特典あり備考
地下鉄五条駅まで徒歩4分の3LDKマンションです。阪急、地下鉄のダブルアクセス。更新料ナシです。嬉しい3点セパレートなど充実の設備。オートロック、TVホンでセキュリティも安心です。コンビニ、スーパーなど近くにあって便利ですよ。光ファイバー対応しています。お部屋探しはアパマンショップ四条烏丸店にお任せください。すぐに対応させていただきます
物件周辺の生活情報
学校
- 下京中学校(285m)
買い物
- コンビニ(19m)
- スーパー(68m)
その他施設
- 総合病院(757m)
- 銀行(736m)
- 京都市下京区役所(1,200m)
交通
- 京都市営烏丸線 五条駅 徒歩4分
- 普通(停車)
- 急行(停車)
- 京都市営烏丸線 四条駅 徒歩14分
- 普通(停車)
- 急行(停車)
※急行等の停車駅情報について
急行等の停車駅に関するデータは、随時更新をしておりますが、最新の内容であることを保証するものではありません。
最新かつ正確な情報につきましては、各鉄道会社のウェブサイトにてご確認ください
物件周辺の口コミ
- 京都府京都市下京区仏光寺通堀川東入に住む人の口コミ60代女性
デパートも歩いていけて便利だし、鉄道も阪急や京福など充実している。
口コミを見る
この物件周辺に住む人の口コミ
口コミは、LIFULL HOME'Sが実際にこの物件の周辺に住む18歳~69歳の男女を対象に、WEBアンケート調査を実施しています。内容には回答者の主観的な表現が含まれる場合があるほか、事実と異なる場合もございます。ご了承ください。
- 京都府京都市下京区仏光寺通堀川東入に住む人の口コミ60代女性
- デパートも歩いていけて便利だし、鉄道も阪急や京福など充実している。
- 京都府京都市下京区五条通大橋西入に住む人の口コミ30代男性
- スーパーや大型商業施設が近くにあり普段生活するのに必要なものがすべて徒歩圏内に揃っていて便利。狭い道が多く観光シーズンには人が多すぎて不便。
- 京都府京都市下京区万寿寺通富小路東入に住む人の口コミ40代女性
- 繁華街が近く買い物や飲食に便利だが、近隣は住宅街なので静か。電車の最寄り駅が2路線あり、バスも複路線利用できる。
- 京都府京都市下京区中堂寺坊城町に住む人の口コミ50代男性
- 生活に関係のあるものは大概あり、交通の便もよく、住むのに不自由はない。
- 京都府京都市下京区高辻通堀川西入に住む人の口コミ30代女性
- 街中ですが夜は割と静かに過ごせますし、スーパーやコンビニもいくつかあるので1人でもファミリーでも過ごしやすい街だと思う。
- 京都府京都市下京区小坂町に住む人の口コミ60代男性
- 以前住んでいた場所は国道に面していたので交通量が多かったので夜も騒音がありましたが、現在の場所は交通量は少ないので夜は静かです。
- 京都府京都市下京区松原通油小路東入に住む人の口コミ30代女性
- 治安がよく、地域の繋がりが保たれ、定期的にイベントの開催もあり、老若男女が安心して暮らせる。
- 京都府京都市下京区黒門通五条下る西入に住む人の口コミ50代女性
- 生活するのに不自由無い。日本を代表する世界でも唯一無二の古都で伝統的な行事もあり文化が生活に根付いている。少し歩けばあちこちに世界遺産がある。
- 京都府京都市下京区東堀川通高辻上るに住む人の口コミ30代男性
- バス停や駅へのアクセスがよく、車がなくても生活はしていける。地域の見守り活動も活発で、安全。
- 京都府京都市下京区高辻通黒門東入に住む人の口コミ30代女性
- 24時間スーパーが近くにあり、大通りは夜中でも街灯も明るく女性も安心。近くに飲食街やカラオケなどの娯楽施設がある。わざわざ繁華街へ行かなくても楽しめる。また、その繁華街も徒歩でも行ける距離で便利。
物件概要
- 建物構造
- SRC(鉄骨鉄筋コンクリート)
- 駐車場
- 無
- 総戸数
- 18戸
- 契約形態
- -
- 契約期間
- 2年間
- 更新料
- 33,000円
- その他費用
- 鍵交換費用:16,500円、室内清掃費用:60,500円、入居者サポート:1,100円
- 保証会社
加入要
保証会社利用料:初回:月額賃料等の50%、月額:支払い手数料1790円
- 住宅保険
- 要
- 管理
- 管理員:巡回
- LIFULL HOME'S
物件番号 - 0113627-0257868
- 自社管理番号
- 10307-301-64
- 取引態様
- 仲介
- 会社名
- ウインズリンク株式会社 アパマンショップ西院店
営業スタッフコメント

ウインズリンク株式会社 アパマンショップ西院店
速水歩
女性が好む食料品が好みです。
業界経験4年
資格少額短期保険募集人
- 会社実績や特徴・サービス情報
- アパマンショップ西院店の掲載物件をご覧いただき、ありがとう御座います。 当店は右京区・中京区・下京区・西京区を中心に阪急沿線、地下鉄沿線、JR沿線と 京都市内全域の物件を取り扱い、幅広い物件のご提案・ご紹介が可能です。 社会人様・カップル様・ファミリー様をはじめ、京都外国語大学・立命館大学・ 京都先端科学大学・大和学園などの学生様・留学生様まで当店のスタッフが 貴方のお部屋探しに最大限、尽力させていただきます。 ちょっとしたご相談や1件の見学からでもお気軽にお問い合わせ下さいませ。
アパマンショップ西院店の掲載物件をご覧いただき、ありがとう御座います。 当店は右京区・中京区・下京区・西京区を中心に阪急沿線、地下鉄沿線、JR沿線と 京都市内全域の物件を取り扱い、幅広い物件のご提案・ご紹介が可能です。 社会人様・カップル様・ファミリー様をはじめ、京都外国語大学・立命館大学・ 京都先端科学大学・大和学園などの学生様・留学生様まで当店のスタッフが 貴方のお部屋探しに最大限、尽力させていただきます。 ちょっとしたご相談や1件の見学からでもお気軽にお問い合わせ下さいませ。
- 電話でお問合せ(通話無料)
お問合せ先 :ウインズリンク株式会社 アパマンショップ西院店
不動産会社情報
ウインズリンク株式会社 アパマンショップ西院店 アパマンショップ西院店

京都府京都市右京区西院巽町41
阪急京都本線 西院駅 徒歩1分
- 営業時間
- 09:30~19:00
- 定休日
- なし(盆休み8/13〜8/16・年末年始12/27〜1/4)
優良店認定
右京区・中京区を中心に市内全域ご対応可能。シャーメゾンSHOPであり他社様では取り扱えない物件も多数あり、ご厚意にして頂いている家主様も多く様々なご相談が可能。お部屋探しは当店へお気軽にご相談下さい。
- 店舗の特徴
- 賃貸管理業務
- リフォーム対応
- 引越し業者紹介可
- 年中無休
- 保証人不要な物件あり
- 法人契約取扱い
- 女性スタッフ対応可
- 駅から歩いて3分以内
電話でお問合せお客様の電話番号は不動産会社には通知されません
- 不動産会社に
つながります
お客様の電話番号は不動産会社に通知されません
- ※光IP電話、及びIP電話からはご利用になれません
- ※お電話によるお問合せは、店舗営業時間内にお願いします。つながらない場合は、お問合せフォームよりお問合せください
- ※不動産会社がお電話に出られなかった場合、お問合せいただいた後に不動産会社より折り返しのお電話がある場合がございます(お客様が非通知設定した場合は対象外です)
- ※株式会社LIFULLは電話会社が提供するサービスを介してお客様の発信者番号を受領後、折り返し専用の電話番号を発番してお問合せの不動産会社に通知します(お客様の発信者番号がお問合せの不動産会社に通知されることはございません)
- ※携帯電話からお問合せいただいた方に対し、株式会社LIFULLは電話会社が提供するメッセ―ジサービスを介してお客様の発信者番号を受領後、ショートメッセージ(SMS)またはLINE通知メッセージによるお問合せ内容に関する通知をお届けする場合があります
- ※お客様が通話中に不動産会社にお伝えになったお客様の個人情報及び、電話会社が発番する折り返し専用の電話番号は、お問合せ先不動産会社が資料送付・電子メール送信・電話連絡などの目的で保管する可能性があります。お問合せ先不動産会社が保管する個人情報の取扱いについては、各不動産会社に直接お問合せください
- ※株式会社LIFULLでは本サービスを円滑に運用するために、お客様の発信者番号をサービスご利用の控えとして一定期間保管いたします
- ※上記および株式会社LIFULLの個人情報の取扱い方針に同意のうえ、お電話ください
【LIFULL HOME'S物件番号】0113627-0257868【自社管理番号】10307-301-64
初期費用・月額費用をあわせて確認!この物件に住んだときの費用めやす
めやすを見るこの物件に住んだときの費用めやす
- 初期費用
- 月額費用
- 追加費用※ご確認ください
追加で費用が
かかる場合があります
必ずご確認ください
初期費用めやす約0円
追加で費用がかかります(※)敷金
140,000
- 礼金
140,000
賃料+共益費・管理費の1ヶ月分として換算
賃料の1ヶ月分+税として換算。不動産会社によって金額が異なるため正確な金額は不動産会社にお問合せください
※追加費用もチェック!
これらの項目以外にも費用がかかる場合があります。正確な金額は不動産会社にお問合せください。
- 初期費用
- 鍵交換費:16,500円
- 室内清掃費:60,500円
- 火災保険費:不動産会社に要確認
- その他
- 入居者サポート:1100円
- 保証会社
- 初回:月額賃料等の50%、月額:支払い手数料1790円
不動産会社より
地下鉄五条駅徒歩4分 地下鉄沿線徒歩圏の3LDK、南向きベランダの登場です。
地下鉄五条駅まで徒歩4分の3LDKマンションです。阪急、地下鉄のダブルアクセス。更新料ナシです。嬉しい3点セパレートなど充実の設備。オートロック、TVホンでセキュリティも安心です。コンビニ、スーパーなど近くにあって便利ですよ。光ファイバー対応しています。お部屋探しはアパマンショップ四条烏丸店にお任せください。すぐに対応させていただきます
- 保存する
- 共有する
- ※各種情報と現状に差異がある場合は、現状優先となります
- ※不動産会社が入力した情報を基に物件の位置を表示しています。詳しくは不動産会社までお問合せください
- ※不動産会社の方からの上記電話番号によるお問合せはお断りしております。こちら不動産会社詳細からお問合せください
- ※LIFULL HOME'Sは物件鮮度No.1を目指していきます。閲覧中の物件が「成約済である」「実際の物件情報と異なる点がある」などの場合、「掲載110番」からお問合せください
- ※QRコードは株式会社デンソーウェーブの登録商標です
したい暮らしのタグから探す
この物件を取扱う他の会社
LIFULL HOME'Sでは、主要項目が同一の物件をまとめて表示しています。所在地や営業時間、掲載画像等から不動産会社を選んでお問合せください。
アパマンショップ今出川店 ウインズリンク株式会社
京都府京都市上京区烏丸通今出川上る岡松町272 クローバービル1階
京都市営烏丸線 今出川駅 徒歩1分
- 営業時間
- 09:30~19:00
- 定休日
- なし(盆休み8/13〜8/16・年末年始12/27〜1/4)
ウインズリンク株式会社 アパマンショップ二条駅前店
京都府京都市中京区西ノ京南聖町12-6 ダイエー第七ビル1階
JR山陰本線 二条駅 徒歩2分
- 営業時間
- 09:30~19:00
- 定休日
- なし(盆休み8/13〜8/16・年末年始12/27〜1/4)
ウインズリンク株式会社 アパマンショップ京都駅前店
優良店認定
京都府京都市下京区東洞院通七条下る東塩小路町541−1
JR東海道・山陽本線 京都駅 徒歩3分
- 営業時間
- 09:30~19:00
- 定休日
- なし(盆休み8/13〜8/16・年末年始12/27〜1/4)
株式会社京都ライフ 二条駅前店
京都府京都市中京区西ノ京職司町72 ウエストフィールド1階
京都地下鉄東西線 二条駅 徒歩3分
- 営業時間
- 09:30~19:00
- 定休日
- 年中無休(盆正月を除く)
LIFULL HOME'S 地図・周辺情報
買い物
- ローソン 五条若宮店
- フレスコ 五条西洞院店
- ココカラファイン新町店
- ファミリーマート 五条新町店
- フレスコ 五条店
グルメ
- ロイヤルホスト 堀川五条店
- 吉野家 烏丸五条店
- CoCo壱番屋 烏丸五条店
- マクドナルド 烏丸五条店
- やよい軒 五条烏丸店
育児・教育
- 京都市立楊梅幼稚園
- 京都市立下京雅小学校
- 京都市立下京中学校
- 大谷保育園
- 京都市立洛央小学校
医療
- 木津屋橋武田病院
- 医療法人令寿会しまばら病院
- 医療法人財団康生会武田病院
- 山元病院
- 医療法人知音会京都新町病院
公共施設・郵便局
- 京都若宮松原郵便局
- 京都市下京図書館
- 京都府下京警察署
- 京都六条郵便局
- 京都市南図書館
公園
- 光徳公園
- 梅小路公園
- 梅小路公園
- 梅屋広場公園
- 唐橋西寺公園
利用可能な駅
- 徒歩10分以内
京都市営烏丸線
- 五条駅徒歩4分
- すべての駅
京都市営烏丸線
- 四条駅徒歩14分
- 周辺情報は2023年07月21日時点のものになります。
- 周辺情報は、参考情報としてのみご利用ください(周辺情報は、株式会社LIFULLが地図情報の提供事業者から提供を受けた情報とLIFULL HOME'Sの物件情報に基づき、独自の方法で抽出し提供しているものです。周辺情報は、移転や閉鎖等により情報が最新ではない、または正しくない場合がありますが、地図情報の提供事業者から提供された情報をそのまま周辺情報として表示しているため、正確かつ最新の情報へ修正することができないことがあります。)
- 周辺情報は、株式会社LIFULLが掲載するものであり、不動産物件情報を掲載している不動産会社が掲載するものではありません
- 交通情報の一部については、株式会社LIFULLが掲載するものであり、不動産物件情報を掲載している不動産会社が掲載するものではない場合があります。交通情報に関する質問などは株式会社LIFULLにお問合せください

















