このページは物件の広告情報ではありません。
過去にLIFULL HOME'Sへ掲載された不動産情報と提携先の地図情報を元に生成した参考情報です。また、一般から投稿された情報など主観的な情報も含みます。
情報更新日: 2025/11/28
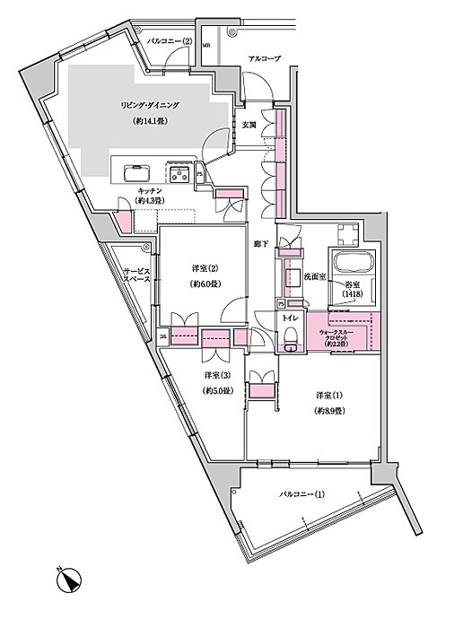
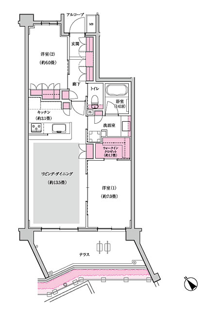
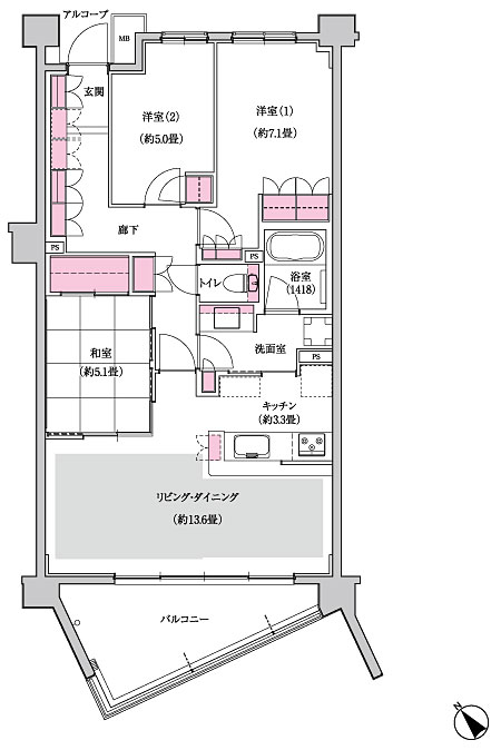
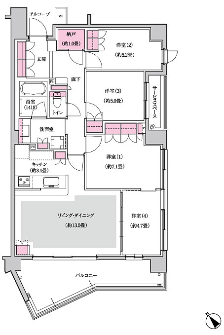
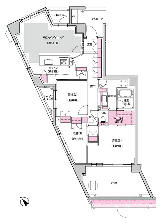
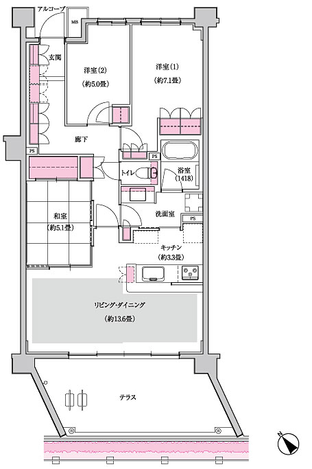
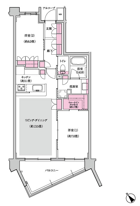
パークホームズ新検見川テラス
| 所在地 | 千葉県千葉市花見川区花園5丁目55番1 |
|---|---|
| 交通 |
|
スポンサーリンク
パークホームズ新検見川テラスの建物情報
物件概要
| 物件種別 | マンション |
|---|---|
| 築年月(築年数) | 2011年5月 (築15年) |
| 建物構造 | 鉄筋コンクリート造地上4階 |
| 総戸数/総区画数 | 35戸 |
| 敷地全体面積 | 2600.56平米 |
| 用途地域 | 第一種低層住宅専用、第一種中高層住居専用 |
| 売主 | 三井不動産レジデンシャル株式会社 |
| 販売会社 | - |
設備・条件
- 追い焚き
- システムキッチン
- オートロック
※最新の状態と異なる場合があります
売りたい不動産をお持ちの方へ
このエリアの所有不動産を査定する
売却査定手続きの流れ、費用相場や注意点など不動産売却について詳しく知りたい方はLIFULL HOME'S 不動産査定へ
パークホームズ新検見川テラス周辺の物件情報
周辺の問合せ可能な物件
千葉県千葉市花見川区の問合せ可能な物件のうち、この物件の周辺にあるものから表示しています
賃貸
-
募集中
- ハイムぱれっと
- 4.7万円
- JR総武線 新検見川駅 徒歩5分
- 千葉県千葉市花見川区花園2丁目
- 18.09m² / 1K
-
募集中
- MELDIA新検見川III
- 5.1万円
- JR総武線 新検見川駅 徒歩12分
- 千葉県千葉市花見川区花園町
- 19.11m² / 1K
-
募集中
- Gnosis花見川
- 5.3万円
- JR総武線 新検見川駅 徒歩6分
- 千葉県千葉市花見川区花園1丁目19-12
- 21.86m² / 1K
-
募集中
- La Sua Casa.H
- 6.7万円
- JR総武線 新検見川駅 徒歩5分
- 千葉県千葉市花見川区花園1丁目
- 29.89m² / ワンルーム
-
募集中
- JR総武線 新検見川駅 徒歩3分
- 7.9万円
- JR総武線 新検見川駅 徒歩3分
- 千葉県千葉市花見川区花園1丁目
- 33.39m² / 1LDK
-
募集中
- ミザール
- 7.4万円
- JR総武線 新検見川駅 徒歩10分
- 千葉県千葉市花見川区花園町
- 33.39m² / 1LDK
-
募集中
- リブリ・レイヴ花園
- 6.2万円
- JR総武線 新検見川駅 徒歩6分
- 千葉県千葉市花見川区花園1丁目17-5
- 23.18m² / 1K
-
募集中
- D-ROOM花園
- 9.7万円
- JR総武線 新検見川駅 徒歩11分
- 千葉県千葉市花見川区花園3丁目18-22
- 42.79m² / 1LDK
-
募集中
- JR総武線 新検見川駅 徒歩6分
- 5.2万円
- JR総武線 新検見川駅 徒歩6分
- 千葉県千葉市花見川区花園2丁目8-19
- 24.84m² / 1K
-
募集中
- JR総武線 新検見川駅 徒歩12分
- 5.1万円
- JR総武線 新検見川駅 徒歩12分
- 千葉県千葉市花見川区花園町2449-5
- 19.11m² / 1K
一戸建て
注文住宅
※表示価格は延べ床面積約132m²の場合の建物価格の参考値です
-
資料請求受付中
- 3000万円〜
- 株式会社スウェーデンハウス
- 【スウェーデンハウス】お客様満足度総合第1位の声「No.1 Sweden House News」
-
資料請求受付中
- 3000万円〜
- セキスイハイム
- 【セキスイハイム|平屋】ザ・デザイナーズハイムD1
-
資料請求受付中
- 2400万円〜
- 株式会社トミオ
- tomio mamanの家
-
資料請求受付中
- 3200万円〜
- ダイワハウス
- 【ダイワハウス】 xevoΣ<ジーヴォシグマ> ~天井高2m72cmの高さというゆとり空間~
-
資料請求受付中
- 1868万円〜
- タマホーム株式会社
- 大安心の家シリーズ
-
資料請求受付中
- -
- へーベルハウス
- 【ヘーベルハウス】:ヘーベルハウス総合カタログ
-
資料請求受付中
- 2000万円〜
- 一条工務店
- 【一条工務店】 建築実例集3冊セット(HOME’S限定)
エリア・駅で絞り込んで探す
千葉県のパークホームズが含まれるマンション
周辺の建物情報
物件の種類から探す
千葉市花見川区で募集中の物件のみを検索できます
掲載情報に誤りや問題がある場合
LIFULL HOME'Sは「不動産会社」ではなく「情報掲載サイト」です
- ※管理会社の情報はLIFULL HOME'Sでは保持していないためお答えできません。お問合せはお控えください
- ※最新の募集状況は掲載中の不動産会社があれば、不動産会社へ直接お問合せください
掲載情報の訂正依頼 専用ダイヤル
0120-987-243
- 専用ダイヤル受付時間:10:00〜18:00
- ※土日・祝日、臨時休業日は除く
不動産データのご利用について
不動産事業におけるDX、サービスの改善、新規事業開発等をご検討中の方へ不動産データの活用をご提案します。LIFULL HOME'Sで集約した不動産情報や外部データは、不動産事業DX、不正決済防止、ローン審査、事業開発、研究等さまざまな事業でご活用いただいています。詳しくは以下よりご確認ください。
不動産アーカイブご利用アンケートにご協力ください
不動産アーカイブの掲載情報は、LIFULL HOME'S掲載の不動産情報および提携先の不動産情報を統計情報として集積したものであり、その存在や信憑性を保証するものではありません。