このページは物件の広告情報ではありません。
過去にLIFULL HOME'Sへ掲載された不動産情報と提携先の地図情報を元に生成した参考情報です。また、一般から投稿された情報など主観的な情報も含みます。
情報更新日: 2025/11/28
ラフィア東戸塚
スポンサーリンク
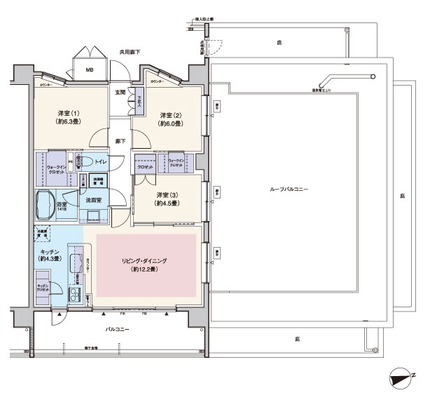
ラフィア東戸塚の建物情報
物件概要
| 物件種別 | マンション |
|---|---|
| 築年月(築年数) | 2009年11月 (築17年) |
| 建物構造 | 鉄筋コンクリート造7階建 |
| 総戸数/総区画数 | 52戸 |
| 敷地全体面積 | 2,130.24m2 |
| 用途地域 | 第一種住居 |
| 土地権利 | 所有権 |
| 施工会社 | 相鉄・大洋建設共同企業体 |
| 売主 | 相鉄不動産株式会社・中央商事株式会社・大洋建設株式会社 |
| 販売会社 | 相鉄不動産販売株式会社(代理) |
設備・条件
- オール電化
- 追い焚き
- 浴室乾燥機
- IHコンロ
- システムキッチン
- ディスポーザー
- 床暖房
- ブロードバンド
- バリアフリー
- オートロック
- 防犯カメラ
- 住宅性能評価書
- 環境にやさしい
- スーパー800m以内
- コンビニ400m以内
※最新の状態と異なる場合があります
売りたい不動産をお持ちの方へ
このエリアの所有不動産を査定する
売却査定手続きの流れ、費用相場や注意点など不動産売却について詳しく知りたい方はLIFULL HOME'S 不動産査定へ
ラフィア東戸塚の周辺施設
-
買い物
日用品 -
- ローソン 戸塚品濃町店
- ハックドラッグ東戸塚前田町店
- Olympic おりーぶ東戸塚店
- シルク東戸塚店
- 買い物
大型店 -
- 紳士服コナカ 東戸塚総本店
- 西武東戸塚S.C.
- ハニーズ 西武東戸塚SC店
- ジーンズメイト 東戸塚店
- グルメ
-
- 無添くら寿司 東戸塚駅東口店
- ドトールコーヒーショップ東戸塚店
- 中華食堂日高屋東戸塚東口店
- 星乃珈琲店東戸塚店
- 娯楽施設
-
- 快活CLUB東戸塚駅前店
- セントラルフィットネスクラブ東戸塚駅前
- 秋葉台公園
- セントラルスポーツクラブ東戸塚
- 役所
公共施設 -
- 東戸塚駅東口郵便局
- 東戸塚駅西口郵便局
- 横浜川上郵便局
- 横浜柏尾郵便局
- 医療
-
- 東戸塚記念病院
- 保育施設
-
- 明日葉保育園東戸塚園
- 横浜東戸塚雲母保育園
- 横浜市川上保育園
- ちゃいれっく前田町保育園
- 学校
-
- 横浜市立品濃小学校
- 横浜市立川上北小学校
- 横浜市立平戸小学校
- 横浜市立川上小学校
ラフィア東戸塚周辺の物件情報
周辺の問合せ可能な物件
神奈川県横浜市戸塚区の問合せ可能な物件のうち、この物件の周辺にあるものから表示しています
賃貸
-
募集中
- サンライト前田
- 6.8万円
- JR横須賀線 東戸塚駅 徒歩11分
- 神奈川県横浜市戸塚区前田町
- 39.66m² / 2DK
-
募集中
- 第二サンコート東戸塚
- 4.9万円
- JR横須賀線 東戸塚駅 徒歩9分
- 神奈川県横浜市戸塚区前田町501-7
- 17.01m² / ワンルーム
-
募集中
- JR横須賀線 東戸塚駅 徒歩9分
- 4.9万円
- JR横須賀線 東戸塚駅 徒歩9分
- 神奈川県横浜市戸塚区前田町
- 17.01m² / ワンルーム
-
募集中
- グランドメゾン東戸塚2番館
- 18万円
- 湘南新宿ライン宇須 東戸塚駅 徒歩10分
- 神奈川県横浜市戸塚区前田町214-1
- 81.54m² / 3LDK
-
募集中
- エヌエフ東戸塚
- 10.5万円
- 湘南新宿ライン宇須 東戸塚駅 徒歩8分
- 神奈川県横浜市戸塚区前田町503-15
- 46.11m² / 2DK
-
募集中
- グランドメゾン東戸塚4番館
- 22万円
- JR横須賀線 東戸塚駅 徒歩10分
- 神奈川県横浜市戸塚区前田町
- 85.54m² / 3LDK
-
募集中
- JR横須賀線 東戸塚駅 徒歩10分
- 22万円
- JR横須賀線 東戸塚駅 徒歩10分
- 神奈川県横浜市戸塚区前田町
- 85.54m² / 3LDK
-
募集中
- ピュアハウス
- 6.5万円
- JR横須賀線 東戸塚駅 徒歩10分
- 神奈川県横浜市戸塚区品濃町
- 33.77m² / 2DK
-
募集中
- ヴァンサンカン
- 8.4万円
- JR横須賀線 東戸塚駅 徒歩6分
- 神奈川県横浜市戸塚区川上町
- 36.43m² / 1LDK
-
募集中
- JR横須賀線 東戸塚駅 徒歩8分
- 17.1万円
- JR横須賀線 東戸塚駅 徒歩8分
- 神奈川県横浜市戸塚区川上町152-5
- 71.32m² / 3LDK
新築マンション
※完成後1年以上経過した未入居の物件が含まれている場合があります
中古マンション
-
売出し中
- ヴェレーナグラン東戸塚
- 6980万円
- JR横須賀線 東戸塚駅 徒歩10分
- 神奈川県横浜市戸塚区品濃町
- 67.8m² / 3LDK
-
売出し中
- ニューシティ東戸塚南の街壱号館
- 5499万円
- JR横須賀線 東戸塚駅 徒歩3分
- 神奈川県横浜市戸塚区品濃町
- 80.53m² / 3LDK
-
売出し中
- 東戸塚ガーデンハウス壱番館
- 4690万円
- JR横須賀線 東戸塚駅 徒歩9分
- 神奈川県横浜市戸塚区川上町
- 66.26m² / 3LDK
-
売出し中
- 前田ハイツ8号棟
- 2280万円
- JR横須賀線 東戸塚駅 徒歩13分
- 神奈川県横浜市戸塚区前田町
- 66.77m² / 2LDK
-
売出し中
- 前田プラザ
- 1780万円
- JR横須賀線 東戸塚駅 徒歩12分
- 神奈川県横浜市戸塚区前田町
- 60.3m² / 3LDK
-
売出し中
- 藤和東戸塚ハイタウン
- 560万円
- JR横須賀線 東戸塚駅 徒歩17分
- 神奈川県横浜市戸塚区前田町56-1
- 29.88m² / 2K
-
売出し中
- 東戸塚前田町パーク・ホームズ
- 4080万円
- JR横須賀線 東戸塚駅 徒歩13分
- 神奈川県横浜市戸塚区前田町
- 73.63m² / 3LDK
-
売出し中
- シティウインズ東戸塚エアステージ
- 5580万円
- JR横須賀線 東戸塚駅 徒歩14分
- 神奈川県横浜市戸塚区平戸町
- 88.77m² / 4LDK
-
売出し中
- スカイヴィレッジ戸塚
- 1299万円
- JR横須賀線 東戸塚駅 徒歩17分
- 神奈川県横浜市戸塚区上柏尾町500-12
- 48.82m² / 3DK
-
売出し中
- 東戸塚グリーンハイツ
- 2180万円
- JR横須賀線 東戸塚駅 徒歩19分
- 神奈川県横浜市戸塚区上柏尾町
- 72.79m² / 3LDK
一戸建て
-
売出し中
- 戸塚区中古戸建 お庭 リビング階段 リフォーム済
- 4480万円
- 湘南新宿ライン宇須 東戸塚駅 徒歩14分
- 神奈川県横浜市戸塚区前田町
- 97.07m² / 4LDK
-
売出し中
- 中古戸建 東戸塚
- 4480万円
- JR横須賀線 東戸塚駅 徒歩14分
- 神奈川県横浜市戸塚区前田町
- 97.07m² / 4LDK
-
売出し中
- 横浜市戸塚区前田町中古戸建
- 4080万円
- JR横須賀線 東戸塚駅 徒歩17分
- 神奈川県横浜市戸塚区前田町
- 86.94m² / 4LDK
-
売出し中
- 横浜市戸塚区前田町 戸建
- 3980万円
- JR横須賀線 東戸塚駅 徒歩17分
- 神奈川県横浜市戸塚区前田町
- 86.94m² / 4LDK
-
売出し中
- JR横須賀線「東戸塚」駅 徒歩18分~18分
- 5,480万円
- JR横須賀線「東戸塚」駅 徒歩18分~18分
- 神奈川県横浜市戸塚区前田町523
- 82.38m² / 3LDK+S(納戸)
-
売出し中
- ラシット横浜 前田町 全1棟
- 5480万円
- JR横須賀線 東戸塚駅 徒歩18分
- 神奈川県横浜市戸塚区前田町523-32付近
- 82.38m² / 3LDK
-
売出し中
- 戸塚区平戸町 中古一戸建て
- 3450万円
- JR横須賀線 東戸塚駅 徒歩15分
- 神奈川県横浜市戸塚区平戸町205-22
- 67.89m² / 3LDK
-
売出し中
- 横浜市戸塚区前田町 新築一戸建て
- 6980万円
- JR横須賀線 戸塚駅 徒歩18分
- 神奈川県横浜市戸塚区前田町
- 111.33m² / 4LDK
-
売出し中
- 戸塚区平戸町 中古戸建
- 5890万円
- JR横須賀線 東戸塚駅 徒歩17分
- 神奈川県横浜市戸塚区平戸町
- 99.77m² / 2LDK
-
売出し中
- 戸塚区上柏尾町
- 6500万円
- JR横須賀線 東戸塚駅 徒歩23分
- 神奈川県横浜市戸塚区上柏尾町
- 199.41m² / 2LDK
注文住宅
※表示価格は延べ床面積約132m²の場合の建物価格の参考値です
-
資料請求受付中
- 2324万円〜
- ヤマト住建株式会社
- 【エネージュLCCM】脱炭素社会へ!住まいのすべての過程でCO2排出量を抑える住宅
-
資料請求受付中
- 2000万円〜
- 一条工務店
- 【一条工務店】 建築実例集3冊セット(HOME’S限定)
-
資料請求受付中
- 3200万円〜
- ダイワハウス
- 【ダイワハウス】 xevoΣ<ジーヴォシグマ> ~天井高2m72cmの高さというゆとり空間~
-
資料請求受付中
- 1868万円〜
- タマホーム株式会社
- 大安心の家シリーズ
-
資料請求受付中
- 3000万円〜
- 株式会社スウェーデンハウス
- 【スウェーデンハウス】お客様満足度総合第1位の声「No.1 Sweden House News」
-
資料請求受付中
- -
- へーベルハウス
- 【ヘーベルハウス】:ヘーベルハウス総合カタログ
-
資料請求受付中
- 3000万円〜
- セキスイハイム
- 【セキスイハイム|平屋】ザ・デザイナーズハイムD1
エリア・駅で絞り込んで探す
周辺の建物情報
物件の種類から探す
横浜市戸塚区で募集中の物件のみを検索できます
掲載情報に誤りや問題がある場合
LIFULL HOME'Sは「不動産会社」ではなく「情報掲載サイト」です
- ※管理会社の情報はLIFULL HOME'Sでは保持していないためお答えできません。お問合せはお控えください
- ※最新の募集状況は掲載中の不動産会社があれば、不動産会社へ直接お問合せください
掲載情報の訂正依頼 専用ダイヤル
0120-987-243
- 専用ダイヤル受付時間:10:00〜18:00
- ※土日・祝日、臨時休業日は除く
不動産データのご利用について
不動産事業におけるDX、サービスの改善、新規事業開発等をご検討中の方へ不動産データの活用をご提案します。LIFULL HOME'Sで集約した不動産情報や外部データは、不動産事業DX、不正決済防止、ローン審査、事業開発、研究等さまざまな事業でご活用いただいています。詳しくは以下よりご確認ください。
不動産アーカイブご利用アンケートにご協力ください
不動産アーカイブの掲載情報は、LIFULL HOME'S掲載の不動産情報および提携先の不動産情報を統計情報として集積したものであり、その存在や信憑性を保証するものではありません。