このページは物件の広告情報ではありません。
過去にLIFULL HOME'Sへ掲載された不動産情報と提携先の地図情報を元に生成した参考情報です。また、一般から投稿された情報など主観的な情報も含みます。
情報更新日: 2025/12/01
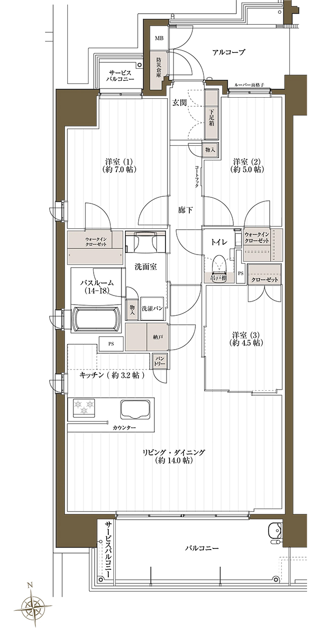
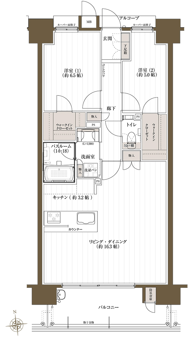
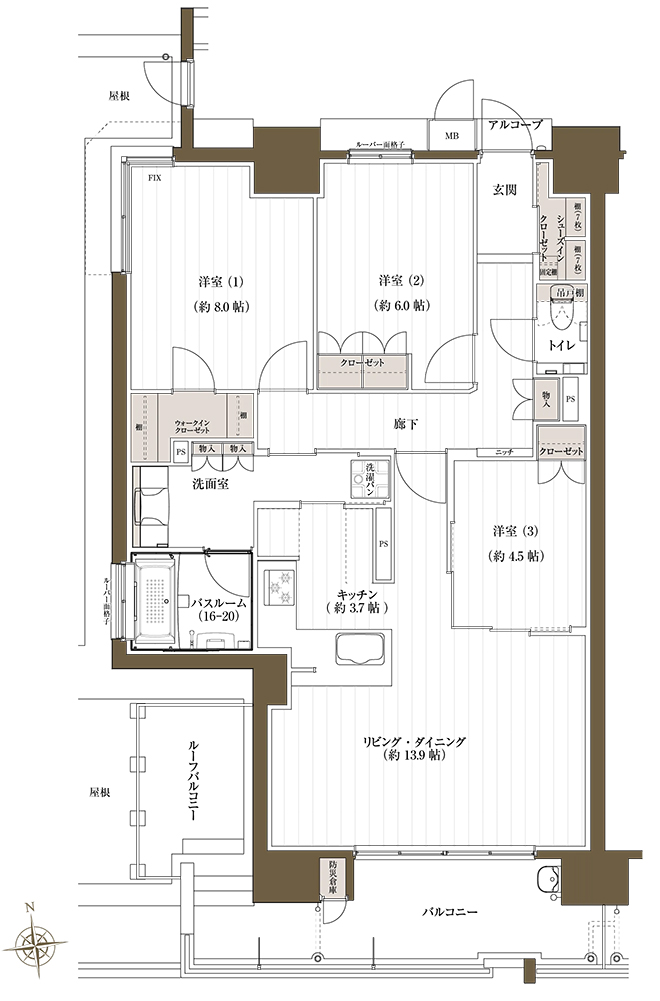
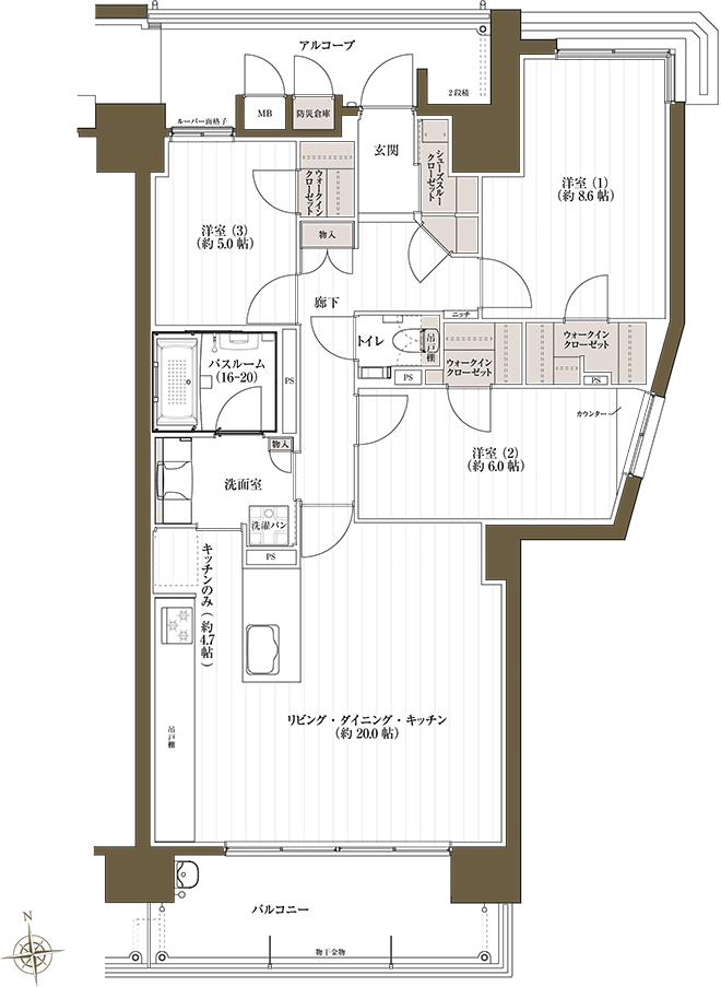
J.CREST番町ミッドハウス
スポンサーリンク
J.CREST番町ミッドハウスの建物情報
物件概要
| 物件種別 | マンション |
|---|---|
| 築年月(築年数) | 2026年12月 (完成予定) |
| 建物構造 | 鉄筋コンクリート造、地上12階建て |
| 総戸数/総区画数 | 34戸 |
| 敷地全体面積 | 1,375.82m2(確認申請時) |
| 用途地域 | 第二種中高層住居専用 |
| 土地権利 | 所有権 |
| 建築確認番号 | 第ERI-24032233号(2024年11月22日付) |
| 施工会社 | 株式会社合田工務店 |
| 売主 | 四国旅客鉄道株式会社 [香川県知事(5)第3787号]、セントラル総合開発株式会社[国土交通大臣(13)第2432号] |
| 販売会社 | 株式会社長谷工アーベスト(販売代理) |
設備・条件
- 追い焚き
- コンロ三口以上
- システムキッチン
- 食器洗い乾燥機
- 浄水器・活水器
- 床暖房
- ウォークインクローゼット
- シングル&DINKS向け
- 複層ガラス採用(二重サッシ・防犯サッシ等)
- オートロック
- 防犯カメラ
- セキュリティ充実
- エレベーター
- ごみ出し24時間OK
- 駐車場完備
- 宅配ボックス
- 外断熱
- 住宅性能評価書
- 南向き
- 子育てに優しい環境
- コンビニ400m以内
- 小学校800m以内
- 公園400m以内
※最新の状態と異なる場合があります
売りたい不動産をお持ちの方へ
このエリアの所有不動産を査定する
売却査定手続きの流れ、費用相場や注意点など不動産売却について詳しく知りたい方はLIFULL HOME'S 不動産査定へ
J.CREST番町ミッドハウスの周辺施設
-
買い物
日用品 -
- セブンイレブン 高松新番丁小学校前店
- ローソン 高松番町三丁目店
- セブンイレブン 香川大学正門前店
- マルナカ 広場店
- 買い物
大型店 -
- エディオン 高松扇町店
- 丸亀町グリーン
- 高松丸亀町壱番街西館
- 無印良品 高松店
- グルメ
-
- 竹清本店
- はなまるうどん 高松兵庫町店
- 松屋 高松兵庫町店
- スターバックスコーヒー高松丸亀町フェスタ店
- 娯楽施設
-
- シーサイドボウル高松
- 中央公園
- 高松市立ヨット競技場
- 高松市立亀岡庭球場
- 文化施設
-
- 高松市歴史資料館
- 高松市美術館
- 讃岐おもちゃ美術館
- 役所
公共施設 -
- 高松扇町郵便局
- 高松番町郵便局
- 香川県警察本部
- 高松市中央図書館
- 医療
-
- 五番丁病院
- 整形外科吉峰病院
- 高松赤十字病院
- 医療法人社団康生会高松大林病院
- 保育施設
-
- 高松市立扇町保育所
- 高松聖母幼稚園
- 香川大学教育学部附属幼稚園高松園舎
- 認定こども園亀阜幼稚園
- 学校
-
- 高松市立新番丁小学校
- 香川県立高松工芸高校
- 国立香川大学
- 私立穴吹学園高校
J.CREST番町ミッドハウス周辺の物件情報
周辺の問合せ可能な物件
香川県高松市の問合せ可能な物件のうち、この物件の周辺にあるものから表示しています
賃貸
-
募集中
- フォルム番町
- 8.7万円
- JR高徳線 昭和町駅 徒歩10分
- 香川県高松市番町2丁目
- 64.25m² / 2LDK
-
募集中
- JR高徳線 昭和町駅 徒歩10分
- 8.7万円
- JR高徳線 昭和町駅 徒歩10分
- 香川県高松市番町二丁目11-9
- 64.25m² / 2LDK
-
募集中
- 幸ビル
- 2万円
- JR高徳線 昭和町駅 徒歩9分
- 香川県高松市扇町2丁目
- 41.4m² / 2K
-
募集中
- Crane番町
- 5.4万円
- JR高徳線 昭和町駅 徒歩9分
- 香川県高松市番町二丁目17-16
- 48.48m² / 2DK
-
募集中
- JR高徳線 昭和町駅 徒歩9分
- 5.4万円
- JR高徳線 昭和町駅 徒歩9分
- 香川県高松市番町二丁目17-16
- 48.48m² / 2DK
-
募集中
- Crane番町
- 5.4万円
- JR高徳線 昭和町駅 徒歩9分
- 香川県高松市番町2丁目
- 48.48m² / 2DK
-
募集中
- サンドリバー夢源
- 4万円
- JR高徳線 昭和町駅 徒歩10分
- 香川県高松市扇町2丁目
- 21.66m² / 1K
-
募集中
- JR高徳線 昭和町駅 徒歩9分
- 2.8万円
- JR高徳線 昭和町駅 徒歩9分
- 香川県高松市錦町2丁目
- 19.14m² / ワンルーム
-
募集中
- アルファ二番町103号
- 2.6万円
- JR高徳線 昭和町駅 徒歩12分
- 香川県高松市錦町2丁目
- 18.58m² / ワンルーム
-
募集中
- JR高徳線 昭和町駅 徒歩10分
- 4万円
- JR高徳線 昭和町駅 徒歩10分
- 香川県高松市扇町二丁目1-25
- 21.66m² / 1K
新築マンション
※完成後1年以上経過した未入居の物件が含まれている場合があります
-
売出し中
- JR予讃線「高松」駅 徒歩9分
- 未定
- JR予讃線「高松」駅 徒歩9分
- 香川県高松市錦町一丁目253-1(地番)
- 148.81m² / 1LDK~4LDK
-
売出し中
- 高松琴平電気鉄道琴平線「瓦町」駅 徒歩9分
- 3,640万円~4,960万円
- 高松琴平電気鉄道琴平線「瓦町」駅 徒歩9分
- 香川県高松市藤塚町二丁目10-1(地番)
- 82.57m² / 2LDK・3LDK
-
売出し中
- 高松琴平電気鉄道琴平線「伏石」駅 徒歩11分
- 3,588万円~4,258万円
- 高松琴平電気鉄道琴平線「伏石」駅 徒歩11分
- 香川県高松市伏石町2089-4(地番)
- 79.13m² / 3LDK
-
売出し中
- JR高徳線「栗林」駅 徒歩8分
- 2,890万円~4,220万円
- JR高徳線「栗林」駅 徒歩8分
- 香川県高松市藤塚町1丁目13-19(地番)
- 80.13m² / 2LDK・3LDK
-
売出し中
- JR予讃線「高松」駅 徒歩7分 (約540m)
- 3,430万円~5,560万円
- JR予讃線「高松」駅 徒歩7分 (約540m)
- 香川県高松市錦町1丁目261-1
- 93.01m² / 2LDK+WIC+FC+SIC~3LDK+3WIC+FC+P+SIC
-
売出し中
- JR予讃線「高松」駅 徒歩11分
- 2,780万円(2戸)~4,140万円(1戸)
- JR予讃線「高松」駅 徒歩11分
- 香川県高松市浜ノ町313-23
- 81.28m² / 2LDK、3LDK
-
売出し中
- 高松琴平電気鉄道琴平線「伏石」駅 徒歩7分 南口
- 3,060万円(1戸)~3,200万円(1戸)
- 高松琴平電気鉄道琴平線「伏石」駅 徒歩7分 南口
- 香川県高松市三条町字悪所21番4、22番1、23番1、24番1、25番1(合筆予定)
- 68.86m² / 2LDK、3LDK
中古マンション
-
売出し中
- アルファ二番町
- 450万円
- JR高徳線 昭和町駅 徒歩12分
- 香川県高松市錦町2丁目12-17
- 20.59m² / ワンルーム
-
売出し中
- コルソ番町
- 1180万円
- JR高徳線 昭和町駅 徒歩10分
- 香川県高松市番町3丁目
- 79.75m² / 3LDK
-
売出し中
- アルファガーデン錦町
- 1230万円
- JR予讃線 高松駅 徒歩10分
- 香川県高松市錦町2丁目4-25
- 76.03m² / 3LDK
-
売出し中
- アルファステイツ錦町
- 4170万円
- JR予讃線 高松駅 徒歩7分
- 香川県高松市錦町1丁目8-29
- 87.59m² / 3LDK
-
売出し中
- アルファスマート高松駅西
- 2380万円
- JR予讃線 高松駅 徒歩10分
- 香川県高松市浜ノ町9-130-1
- 63.28m² / 2LDK
-
売出し中
- ファミール錦町
- 1850万円
- JR高徳線 高松駅 徒歩6分
- 香川県高松市錦町1丁目
- 67.79m² / 3LDK
-
売出し中
- サーパスシティ番町ウエストテラス
- 3590万円
- JR高徳線 栗林公園北口駅 徒歩13分
- 香川県高松市番町5丁目6-37
- 78.0m² / 3LDK
-
売出し中
- ロイヤルガーデンサンポート高松
- 2890万円
- JR予讃線 高松駅 徒歩5分
- 香川県高松市浜ノ町73-9
- 75.96m² / 3LDK
-
売出し中
- ロイヤルガーデンサンポート高松
- 2890万円
- JR予讃線 高松駅 徒歩7分
- 香川県高松市浜ノ町73-9
- 75.96m² / 3LDK
-
売出し中
- アルファガーデン番町II 2階 3LDK
- 2380万円
- JR高徳線 栗林公園北口駅 徒歩11分
- 香川県高松市番町5丁目
- 92.96m² / 3LDK
一戸建て
-
売出し中
- 扇町一丁目戸建て
- 2245万円
- JR高徳線 高松駅 徒歩14分
- 香川県高松市扇町1丁目
- 154.22m² / 5LDK
-
売出し中
- JR高徳線 昭和町駅 徒歩10分
- 2698万円
- JR高徳線 昭和町駅 徒歩10分
- 香川県高松市扇町1丁目
- 103.5m² / 4LDK
-
売出し中
- 高松市扇町 一戸建
- 3180万円
- JR高徳線 昭和町駅 徒歩4分
- 香川県高松市扇町
- 106.27m² / 3SLDK
-
売出し中
- 高松市番町五丁目 中古戸建
- 2800万円
- JR高徳線 栗林公園北口駅 徒歩11分
- 香川県高松市番町5丁目8-9
- 234.09m² / 8LDK
-
売出し中
- 高松市昭和町 一戸建
- 300万円
- JR高徳線 昭和町駅 徒歩4分
- 香川県高松市昭和町2丁目99番11
- 84.81m² / 4DK
-
売出し中
- 高松市宮脇町 一戸建
- 1498万円
- JR高徳線 栗林公園北口駅 徒歩7分
- 香川県高松市宮脇町1丁目
- 151.79m² / 5LDK
-
売出し中
- 高松市西宝町 一戸建
- 3880万円
- JR高徳線 昭和町駅 徒歩10分
- 香川県高松市西宝町3丁目
- 106.81m² / 3LDK
-
売出し中
- 高松市福田町 一戸建 高松市 福田町 (瓦町駅) 住宅 テナ
- 5800万円
- 高松琴平電気鉄道志度線 瓦町駅 徒歩6分
- 香川県高松市福田町
- 392.96m² / 7LDK
-
売出し中
- 高松市藤塚町 中古戸建
- 2980万円
- JR高徳線 栗林駅 徒歩7分
- 香川県高松市藤塚町3丁目
- 218.16m² / 5SLDK
-
売出し中
- 高松市松福町二丁目 中古戸建
- 2380万円
- 高松琴平電気鉄道志度線 松島二丁目駅 徒歩1分
- 香川県高松市松福町2丁目15-24
- 82.81m² / 3LDK
注文住宅
※表示価格は延べ床面積約132m²の場合の建物価格の参考値です
-
資料請求受付中
- 2800万円〜
- ミサワホーム株式会社
- 【MISAWA】ミサワホーム代表カタログ3冊セット(HOME'S限定)
-
資料請求受付中
- -
- 積水ハウス
- BRAND BOOK
-
資料請求受付中
- 3200万円〜
- 三井ホーム株式会社
- 三井ホームのご紹介
-
資料請求受付中
- 2000万円〜
- 一条工務店
- 【一条工務店】 建築実例集3冊セット(HOME’S限定)
-
資料請求受付中
- 3000万円〜
- セキスイハイム
- 【セキスイハイム|平屋】ザ・デザイナーズハイムD1
-
資料請求受付中
- 1868万円〜
- タマホーム株式会社
- 大安心の家シリーズ
-
資料請求受付中
- 2400万円〜
- 「愛ある家が、つくりたい」をスローガンにオークラハウスは2026年に設立60周年を迎えます。
- 平屋シリーズ 「KIBACO ONE STORY」
-
資料請求受付中
- 3200万円〜
- ダイワハウス
- 【ダイワハウス】 xevoΣ<ジーヴォシグマ> ~天井高2m72cmの高さというゆとり空間~
エリア・駅で絞り込んで探す
物件の種類から探す
高松市で募集中の物件のみを検索できます
掲載情報に誤りや問題がある場合
LIFULL HOME'Sは「不動産会社」ではなく「情報掲載サイト」です
- ※管理会社の情報はLIFULL HOME'Sでは保持していないためお答えできません。お問合せはお控えください
- ※最新の募集状況は掲載中の不動産会社があれば、不動産会社へ直接お問合せください
掲載情報の訂正依頼 専用ダイヤル
0120-987-243
- 専用ダイヤル受付時間:10:00〜18:00
- ※土日・祝日、臨時休業日は除く
不動産データのご利用について
不動産事業におけるDX、サービスの改善、新規事業開発等をご検討中の方へ不動産データの活用をご提案します。LIFULL HOME'Sで集約した不動産情報や外部データは、不動産事業DX、不正決済防止、ローン審査、事業開発、研究等さまざまな事業でご活用いただいています。詳しくは以下よりご確認ください。
不動産アーカイブご利用アンケートにご協力ください
不動産アーカイブの掲載情報は、LIFULL HOME'S掲載の不動産情報および提携先の不動産情報を統計情報として集積したものであり、その存在や信憑性を保証するものではありません。